Používame cookies

Súbory cookie a ďalšie technológie sledovania používame na zlepšenie vášho zážitku z prehliadania našich webových stránok, na to, aby sme vám zobrazovali prispôsobený obsah a cielené reklamy, na analýzu návštevnosti našich webových stránok a na pochopenie toho, odkiaľ naši návštevníci prichádzajú. Viac info

 

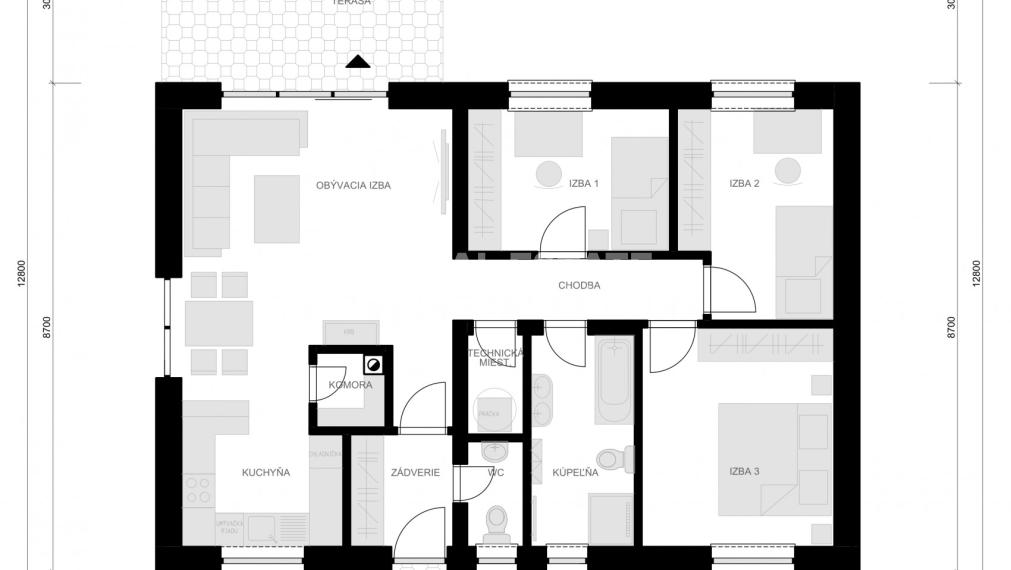
4 IZ BUNGALOV S NOČNOU ZÓNOU V ŠTANDARDE 127 990,-€

Interné ID: 13416
Ulica: Nové Mesto nad Váhom
Obec: Nové Mesto nad Váhom
Okres: Nové Mesto nad Váhom
Kraj: Trenčiansky kraj
Druh: Domy
Typ: Predaj
Typ domu: Rodinný dom
Iné:
127 990 €
cena na kľúč v prevedení štandard aj s terasou

Popis nehnuteľnosti

Realitná kancelária REG4U Vám ponúka - VÝSTAVBU RODINNÉHO DOMU - moderný dom je charakteristický rozdelením denného a nočného priestoru pre rodičov aj deti. V dennej zóne sa nachádza priestranná obývacia izba prepojená s kuchyňou a jedálňou. Nočná zóna má 3 izby so samostatnými vstupmi. Parametre domu:

  • úžitková plocha: 85 m2
  • zastavaná plocha: 126 m2
  • obostavaný priestor: 108 m3
  • minimálne rozmery pozemku: 17 × 20 m

Ceny RD v 3 variantoch možnej výstavby vrátane DPH:
HRUBÁ STAVBA: 54 500,-€
HOLODOM PLUS: 113 750,-€
NA KĽÚČ v prevedení ŠTANDARD vrátane terasy: 127 990,-€

CENA DOMU NEZAHŔŇA PRÍPOJKY INŽINIERSKÝCH SIETÍ A POZEMOK. 

Výhody projektu:

  • katalógový projekt
  • energetický certifikát v triede A0, mesačné náklady na vykurovanie do 100,-€ mesačne 
  • možnosť vyhotovenia domu: nízkoenergetický, pasívny, nulový
  • realizácia voliteľných súčastí stavby – napr. alarm, kamerový systém, rekuperácia, krbový systém
  • certifikát kvality stavby
  • záručný a pozáručný servis

V projekte je možnosť bezplatných, malých úprav v dispozičnom riešení interiéru stavby v rámci projektových možností.

Možnosť výberu zhotovenia stavby – tehla, Ytong, betónový monolit. Predpokladaný termín dokončenia hrubej stavby v závislosti od zvolených materiálov už do 1 mesiaca.


V REG4U vybavíme za Vás:

  • finančné a právne služby
  • stavebné a územné konanie
  • inžinierske siete
  • dotáciu na tepelné čerpadlo, fotovoltiku
  • kolaudáciu

Ponuku nájdete na našej web stránke v kategórii Domy na kľúč: https://www.realestategroup4u.sk/domy-na-kluc 

Call centrum: 0911 175 510

Vlastnosti

Status:
aktívne
Vlastníctvo:
iné
Stav:
novostavba
Celková plocha:
126 m2
Úžitková plocha:
85 m2
Počet podlaží:
1
Počet izieb:
4
Kúpeľňa:
áno
Počet kúpeľní:
1
Energetický certifikát:
A
Terasa:
áno

Informatívna úverová kalkulačka

Pozrieť na mape

Radi Vám poradíme

Podobné nehnuteľnosti