Používame cookies

Súbory cookie a ďalšie technológie sledovania používame na zlepšenie vášho zážitku z prehliadania našich webových stránok, na to, aby sme vám zobrazovali prispôsobený obsah a cielené reklamy, na analýzu návštevnosti našich webových stránok a na pochopenie toho, odkiaľ naši návštevníci prichádzajú. Viac info

 

ÚTULNÝ 3 IZBOVÝ BUNGALOV

Interné ID: 12823352
Ulica: Ilava
Obec: Ilava
Okres: Ilava
Kraj: Trenčiansky kraj
Druh: Domy
Typ: Predaj
Typ domu: Rodinný dom
Iné:
110 000 €
cena na kľúč v prevedení štandard je bez terasy

Popis nehnuteľnosti

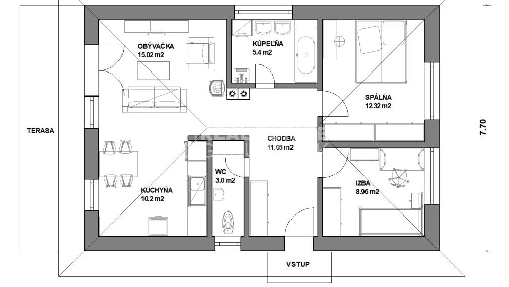
Realitná kancelária REG4U Vám ponúka na pozemku v okolí Ilavy VÝSTAVBU RODINNÉHO DOMU - 3 izbového bungalovu typ VDD 12 s terasou:

  • zastavaná plocha:    85,47 m2
  • úžitková plocha:      65,95 m2
  • rozmery domu:        7,7 x 11,10 m
  • obytné miestnosti:   3

Ponuku nájdete na stránke: realestategroup4u.sk, ID: 12823352

Cena RD v 2 variantoch možnej výstavby vrátane DPH:

HOLODOM: 102 000.-€

DOM NA KĽÚČ: 110 000.-€

*cena domu a zastavaná plocha je bez pergoly nad vchodom a terasou

CENA DOMU NEZAHŔŇA PRÍPOJKY INŽINIERSKÝCH SIETÍ A POZEMOK.  VIAC INFO O POZEMKU V RK.

V prípade, že nemáte vlastný pozemok, obráťte sa na nás a my Vám radi pomôžeme nájsť vhodnú parcelu pre Váš dom.


Výhody projektu:

  • katalógový projekt – výhodná cena
  • použité kvalitné materiály
  • rýchlosť výstavby
  • energetický certifikát v triede A0, mesačné náklady na vykurovanie do 100,-€/mesiac
  • záručný a pozáručný servis

Zhotovenie stavby:

  • montovaná

Predpokladaný termín dokončenia hrubej stavby už do 2 týždňov.

V projekte je možnosť bezplatných, malých úprav v dispozičnom riešení interiéru stavby v rámci projektových možností.


V REG4U vybavíme za Vás:

  • hypotéku a právne služby
  • kataster
  • inžinierske siete
  • koordináciu projektu a výstavby
  • stavebné povolenie
  • kolaudáciu
  • služby interiérového dizajnéra

Ponuku nájdete na našej web stránke v kategórii Domy na kľúč: https://www.realestategroup4u.sk/domy-na-kluc 

Call centrum: 0911 175 510

Vlastnosti

Status:
aktívne
Vlastníctvo:
osobné
Úžitková plocha:
65.95 m2
Zastavaná plocha:
85.47 m2
Stav:
novostavba
Počet izieb:
3
Energetický certifikát:
A
Terasa:
áno
Celková plocha:
85.47 m2
Počet terás:
1
Vykurovanie - podlahové:
áno

Informatívna úverová kalkulačka

Pozrieť na mape

Maklér

Alena Večerková

Alena Večerková

call centrum / klientská podpora

  • narks

 

 „Váš prvý kontakt s profesionálnym svetom realít začína tu.“

   Som prvým hlasom, ktorý v REG4U počujete, a mojím poslaním je zabezpečiť, aby sa vaša požiadavka dostala do správnych rúk. Starám sa o to, aby naša komunikácia s klientmi bola plynulá, rýchla a efektívna. Či už potrebujete informácie o konkrétnej nehnuteľnosti, alebo máte otázky k našim službám výstavby, som tu, aby som vám poskytla potrebnú podporu a nasmerovala vás k našim špecialistom.“

Moja špecializácia:

  • koordinácia klientskych dopytov a prvotná konzultácia
  • zákaznícka podpora a servis
  • správa termínov a informovanosť o portfóliu služieb

Radi Vám poradíme

Podobné nehnuteľnosti