Používame cookies

Súbory cookie a ďalšie technológie sledovania používame na zlepšenie vášho zážitku z prehliadania našich webových stránok, na to, aby sme vám zobrazovali prispôsobený obsah a cielené reklamy, na analýzu návštevnosti našich webových stránok a na pochopenie toho, odkiaľ naši návštevníci prichádzajú. Viac info

 

ROVINATÝ POZEMOK S PRAKTICKÝM RODINNÝM DOMOM - TRENČÍN

Interné ID: 12823711
Ulica: Záblatie
Obec: Trenčín
Okres: Trenčín
Kraj: Trenčiansky kraj
Druh: Domy
Typ: Predaj
Typ domu: Rodinný dom
Iné:
295 700 €
Cena pozemku s domom na kľúč

Popis nehnuteľnosti

Realitná kancelária REG4U Vám ponúka na predaj POZEMOK určený na výstavbu rodinného domu/ov vo vyhľadávanej mestskej časti Záblatie v Trenčíne.

VÝHODY PONUKY:

  • rovinatý, slnečný pozemok  s výmerou 650 m2
  • šírka pozemku až 23 m
  • rozmermi poskytuje priestor aj na relax zónu, či okrasnú aj úžitkovú záhradu
  • zahrnutý v územnom pláne  mesta Trenčín - regulatív UB 03 - výstavba RD s maximálnou výškou 2 nadzemné podlažia + suterén
  • maximálna miera zastavanosti 65%
  • minimálny podiel zelene 25%
  • inžinierske siete - elektrina, voda, plyn, kanalizácia na pozemku 
  • pozemok môže mať aj investičný charakter - napr. zrealizovaním výstavby dvojdomu
  • príjazd po súkromnej komunikácii s právom prejazdu a prechodu (cesta sa bude do finálnej podoby realizovať po skončení výstavby)
  • s dostupnosťou na D1 do 4 km
  • z pozemku sú pekné výhľady na okolitú prírodu
  • v mestskej časti sa nachádza celková občianska vybavenosť pre komfortné bývanie - škola, škôlka, maloobchodné prevádzky a služby
  • k dispozícii linky mestskej dopravy.

Ponuku nájdete na stránke: realestategroup4u.sk, ID: 12823711

CENA POZEMKU: 167 700.-€ ( pozemok sa dá kúpiť aj samostatne)


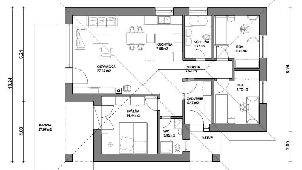
Na predmetnej parcele Vám vieme zabezpečiť výstavbu aj takéhoto praktického bungalovu pre 4 a viacčlennú rodinu:

  • zastavaná plocha: 131 m2
  • úžitková plocha /bez terasy a vstupu/: 92 m2
  • rozmery domu: 13,4 x 10,24 m
  • terasa: 27,97 m2
  • obytné miestností: 4

Ceny RD v 2 variantoch možnej výstavby vrátane DPH:

HOLODOM: 119 000.-€

DOM NA KĽÚČ: 128 000.-€*

*Cena domu nezahŕňa prípojky inžinierskych sietí, komín, exteriérové úpravy a pozemok. Cena zahŕňa prestrešené časti terasy a vchodu.

CENA POZEMKU S DOMOM NA KĽÚČ:  295 700.-€

S financovaním kúpy pozemku a v prípade záujmu i s postupnou výstavbou domu cez hypotéku Vám radi pomôžeme. 

Ponuka projektov rodinných domov: https://www.realestategroup4u.sk/domy-na-kluc


VÝHODY PROJEKTU:

  • katalógový projekt
  • možnosť výberu spomedzi širokej ponuky
  • použité kvalitné materiály
  • rýchlosť výstavby
  • záručný a pozáručný servis

V projekte je možnosť bezplatných, malých úprav v dispozičnom riešení interiéru stavby v rámci projektových možností.

Možnosť výberu zhotovenia stavby:

 ●  murovaný - tehla, Ytong

 ●  montovaný


V REG4U vybavíme za Vás:

  • hypotéku a právne služby
  • kataster
  • inžinierske siete
  • koordináciu projektu a výstavby 
  • stavebné povolenie
  • kolaudáciu
  • služby interiérového dizajnéra

Call centrum: 0911 175 510

Vlastnosti

Status:
aktívne
Vlastníctvo:
osobné
Plocha pozemku:
650 m2
Typ zeme:
rovina
Šírka pozemku:
23 m
Dĺžka pozemku:
28 m
Úžitková plocha:
92 m2
Zastavaná plocha:
131 m2
Stav:
Vo fáze projektovania
Počet izieb:
4
Terasa:
áno
Celková plocha:
650 m2
Terasa plocha:
27.97 m2
Počet terás:
1
Orientácia:
juhozápad
Inžinierske siete:
áno
Voda:
áno
Elektrika:
áno
Plyn:
áno
Kanalizácia:
áno
Voda - na pozemku:
áno
Elektrika - na pozemku:
áno
Plyn - na pozemku:
áno
Kanalizácia - na pozemku - kanalizácia:
áno

Informatívna úverová kalkulačka

Pozrieť na mape

Maklér

 

  "Vaša nehnuteľnosť si zaslúži profesionálny prístup a bezpečnú cestu k novému majiteľovi."

 V dynamickom svete realít sa orientujem s dôrazom na čestnosť, odbornosť a ľudský prístup. Moja práca v Real Estate Group4U nie je len o sprostredkovaní predaja či kúpy, ale o hľadaní najlepšieho riešenia pre každého klienta. Verím, že každá nehnuteľnosť má svoj príbeh a mojou úlohou je postarať sa o to, aby jeho ďalšia kapitola začala hladko a bez zbytočných starostí. Svojim klientom ponúkam nielen svoje skúsenosti, ale aj zázemie silnej spoločnosti, ktorá pod jednou strechou spája realitné služby, výstavbu domov, právnu istotu a odbornú pomoc pri financovaní. 

V čom vám viem pomôcť:

  • profesionálny predaj a prenájom - efektívna prezentácia vašej nehnuteľnosti s cieľom dosiahnuť najlepšiu trhovú cenu
  • bezpečný nákup - aktívne vyhľadávanie nehnuteľností podľa vašich špecifických požiadaviek a overenie ich stavu
  • kompletný servis - koordinácia celého procesu projektu v spolupráci s naším tímom expertov na inžiniering, výstavbu a financie

 Moja priorita je jasná - bezpečná transakcia, maximálna transparentnosť a spokojnosť na oboch stranách.

Radi Vám poradíme

Podobné nehnuteľnosti