Používame cookies

Súbory cookie a ďalšie technológie sledovania používame na zlepšenie vášho zážitku z prehliadania našich webových stránok, na to, aby sme vám zobrazovali prispôsobený obsah a cielené reklamy, na analýzu návštevnosti našich webových stránok a na pochopenie toho, odkiaľ naši návštevníci prichádzajú. Viac info

 

LUKRATÍVNY POZEMOK S VÝSTAVBOU MODERNÉHO BUNGALOVU NA KĽÚČ – BUDATÍN

Interné ID: 12823729
Ulica: Budatín
Mestská časť: Budatín
Obec: Žilina
Okres: Žilina
Kraj: Žilinský kraj
Druh: Pozemky
Typ: Predaj
Typ pozemku: Pozemok pre rodinné domy
Iné:
318 000 €
Cena domu na kľúč spolu s pozemkom

Popis nehnuteľnosti

Realitná kancelária REG4  ponúka na PREDAJ lukratívny, stavebný pozemok vo výmere 810 m2 v mestskej časti Žilina – BUDATÍN.

Miesto s bohatou históriou zachytenou nielen za múrmi Budatínskeho hradu s nádherným parkom má blízko aj ku krásnej prírode, ponúkajúcej široké možnosti na dlhé prechádzky i aktívne športovanie. Pozemok so severovýchodnou orientáciou je situovaný na mierne sa zvažujúcom svahu, čo umožňuje moderné kaskádovité osadenie vily s terasami.

Lokalita prináša pokoj a kľud po vašej náročnej práci, kam uniknete od rušného mesta. Strategická poloha pozemku Vám zaručí IDEÁLNE BÝVANIE PRE NÁROČNÉHO záujemcu.

Na hranici pozemku sa nachádza rozvodová skriňa s možnosťou pripojenia na elektrickú sieť. V prístupovej ceste je vedený vodovod a kanalizácia.

Exkluzívna lokalita vzdialená od centra Žiliny do 5 minút jazdy autom, takmer vždy bez dopravných obmedzení. Na pozemok je navrhnutý projekt výstavby luxusnej vily, spĺňajúcej všetky architektonické, funkčné aj dispozičné požiadavky na moderné bývanie.  Mestská časť Žilina - Budatín sa dlhodobo radí medzí najvychytenejšie lokality regiónu. 

Ponuku nájdete na stránke: realestategroup4u.sk, ID: 12823729

VÝHODY PONUKY

•      Lukratívna lokalita BUDATÍN vyhľadávaná oblasť
•      Veľkorysá výmera 810 m2 ideálna pre výstavbu RD
•      Dostatočná výmera na výstavbu RD aj záhradu – úžitkovú aj okrasnú či relax zónu
•      Pozemok je výborne orientovaný a celý deň slnečný mierne zvažujúci v prednej časti
•      Prístup k pozemku po vybudovanej betónovej ceste
•      Výborná dostupnosť do mesta Žilina autom 3 min. bez dopravných obmedzení
•      V zadnej časti pozemky blízkosť lesa a malý potôčik
•      Na hranici pozemku dostupnosť všetkých IS - elektrika, plyn, vodovod, kanalizácia
•      Tichá a bezpečná lokalita na relaxáciu a súkromie
•      Ponúkame možnosť výstavby katalógového alebo individuálneho projektu RD

Priamy výjazd na rýchlostné cestné komunikácie spájajúce smery Bratislava – Košice – Čadca je dostupný do 3 minút. V blízkosti sa nachádzajú zastávky MHD. Budatín pre svojich obyvateľov zabezpečuje kompletnú občiansku vybavenosť-pravidelné autobusové spoje MHD, materská škola, základná škola, gastro prevádzky, obchody s potravinami, kostol, služby rôzneho druhu, múzeum, park a iné.  

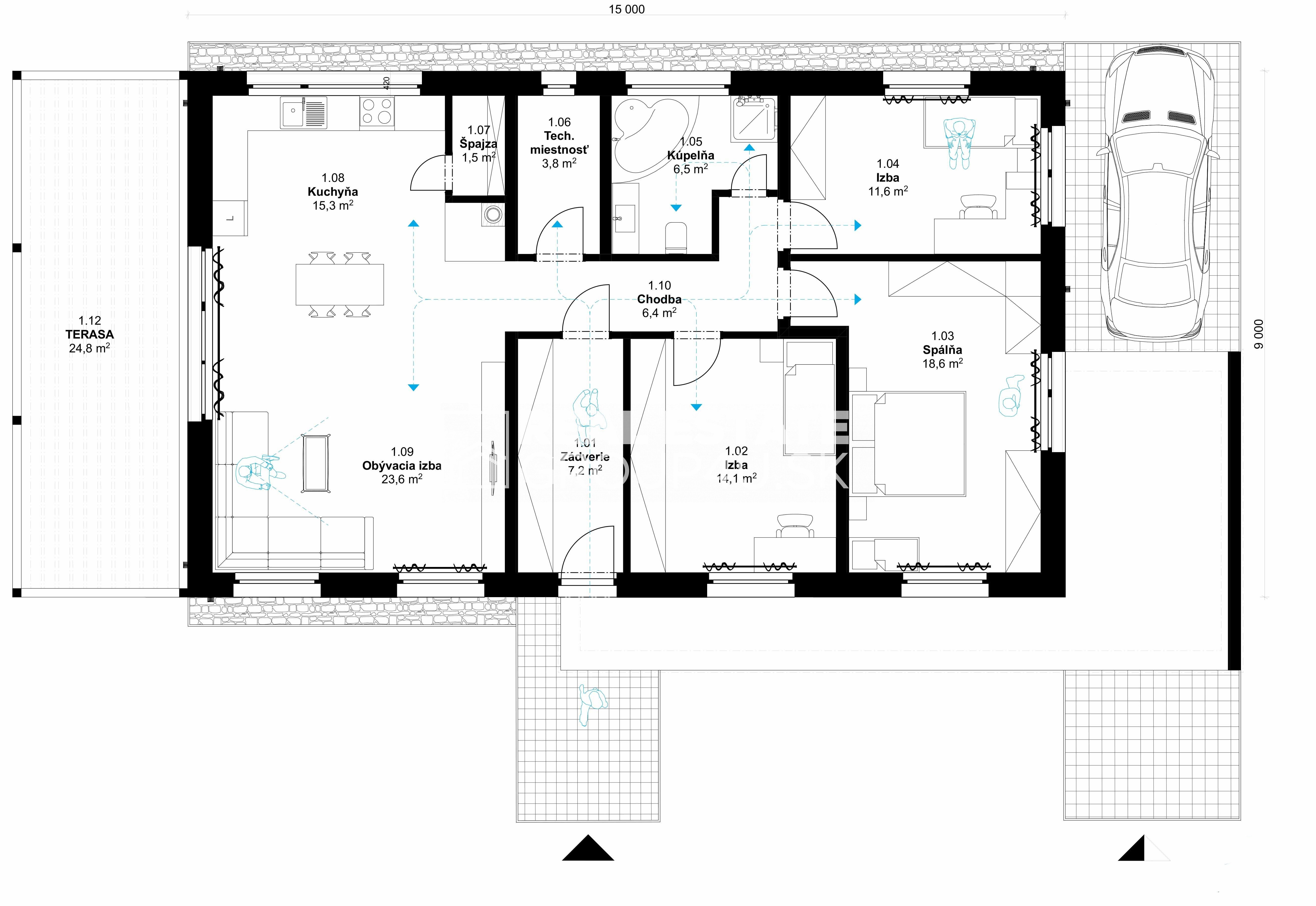
Projekt bungalovu predstavuje nadčasový rodinný dom, ktorý sa pýši úžitkovou plochou 107 m2. Tento luxusný 4-izbový bungalov je vďaka tomu dostatočne veľký a svoje súkromie si v ňom nájde každý člen rodiny. Priestranná terasa poskytuje maximálny komfort bývania a dostatočný pocit súkromia pre viacčlennú rodinu.

PARAMETRE BUNGALOVU
•      zastavaná plocha: 152 m2
•      úžitková plocha: 107 m2
•      rozmery domu: 15,0 m x 9,0 m
•      obytné miestnosti: 4

Cena RD v 2 variantoch možnej výstavby
•      HOLODOM
•      DOM NA KĽÚČ vrátane terasy


CENA DOMU NA KĽÚČ SPOLU S POZEMKOM 318 000,- €
CENA NEZAHŔŇA PRÍPOJKY INŽINIERSKÝCH SIETÍ

Ak Vám nevyhovuje naša ponuka navrhovaného moderného bungalovu a máte inú predstavu a požiadavky o Vašom dome, môžete si vybrať z našej ponuky rodinných domov. Bližšie informácie Vám radi poskytneme v našej realitnej kancelárii.

Ponuka projektov rodinných domov: https://www.realestategroup4u.sk/domy-na-kluc

Predpokladaný termín dokončenia hrubej stavby v závislosti od zvolených materiálov už do 1 mesiaca.

VÝHODY PROJEKTU
•      katalógový projekt
•      energetický certifikát v triede A0
•      mesačné náklady na vykurovanie do 130,-€/mesiac
•      možnosť vyhotovenia domu: nízkoenergetický, pasívny, nulový
•      realizácia voliteľných súčastí stavby – napr. alarm, kamerový systém, rekuperácia, krb a pod.
•      certifikát kvality stavby
•      záručný a pozáručný servis


ZHOTOVENIE STAVBY
•      murovaná - tehla, Ytong
•      betónový monolit

S financovaním kúpy pozemku, prípadne s postupnou výstavbou domu cez hypotéku vám radi pomôžeme.

V REG4U VYBAVÍME ZA VÁS
•      hypotéku a právne služby
•      kataster
•      inžinierske siete
•      koordináciu projektu a výstavby
•      komplet inžiniering k vybaveniu stavebného povolenia
•      kolaudáciu RD
•      služby interiérového dizajnéra

Call centrum: 0911 175 510

Vlastnosti

Status:
aktívne
Vlastníctvo:
osobné
Plocha pozemku:
810 m2
Typ zeme:
mierne svahovitá
Celková plocha:
152 m2
Počet terás:
1
Inžinierske siete:
áno
Voda:
áno
Elektrika:
áno
Plyn:
áno
Kanalizácia:
áno
Voda - na pozemku:
áno
Elektrika - na pozemku:
áno
Plyn - na pozemku:
áno
Kanalizácia - na pozemku - septik:
áno

Pozrieť na mape

Maklér

Radi Vám poradíme

Podobné nehnuteľnosti