Používame cookies

Súbory cookie a ďalšie technológie sledovania používame na zlepšenie vášho zážitku z prehliadania našich webových stránok, na to, aby sme vám zobrazovali prispôsobený obsah a cielené reklamy, na analýzu návštevnosti našich webových stránok a na pochopenie toho, odkiaľ naši návštevníci prichádzajú. Viac info

 

LUXUSNÝ BUNGALOV NA KĽÚČ S POZEMKOM NA SAMOTE - VEĽKÉ ROVNÉ

Interné ID: 12823799
Obec: Veľké Rovné
Okres: Bytča
Kraj: Žilinský kraj
Druh: Domy
Typ: Predaj
Typ domu: Rodinný dom
Iné:
229 500 €
cena POZEMKU s výstavbou RD na kľúč

Popis nehnuteľnosti

Realitná kancelária REG4U Vám v exkluzívnom zastúpení ponúkam na PREDAJ lukratívny, stavebný pozemok o veľkorysej výmere 1 488 m², situovaný na samote pri lese v tichej a pokojnej časti obce Veľké Rovné - časť Dolinky.
Súčasťou ponuky je možnosť výstavby moderného, nadčasového bungalovu na kľúč, navrhnutého s dôrazom na komfort, funkčnosť a prirodzenú eleganciu.

Pozemok s absolútnym súkromím sa nachádza na konci obce, obklopený lesom a prírodou, s panoramatickými výhľadmi na okolitú krajinu.

Lokalita ponúka výnimočný pokoj a ticho, ideálne pre klientov, ktorí po náročnom dni hľadajú útočisko mimo ruchu mesta a vyhľadávajú absolútne súkromie, nerušený pokoj a harmonické bývanie v bezprostrednom kontakte s prírodou

Územie je schválené v územnom pláne obce, čo umožňuje okamžitú realizáciu výstavbu domu. Inžinierske siete na hranici pozemku: elektrina. Prístup na pozemok po obecnej komunikácii.

Ponuku nájdete na stránke: realestategroup4u.sk, ID: 12823799

VÝHODY PONUKY
• výnimočná poloha na samote pri lese, absolútne súkromie a pokoj
• veľkorysá výmera pozemku 1 488 m2 na výstavbu RD aj záhradu – úžitkovú aj okrasnú či relax zónu
• nadčasová rezidencia – bývanie ako životný štýl v lone prírody
• slnečný pozemok s panoramatickými výhľadmi na prírodu
• inžinierske siete na hranici pozemku - elektrika
• prístup po obecnej komunikácii
• okamžitá možnosť výstavby bungalovu
• výborná dostupnosť do mesta Bytča
• možnosť katalógového alebo individuálneho projektu

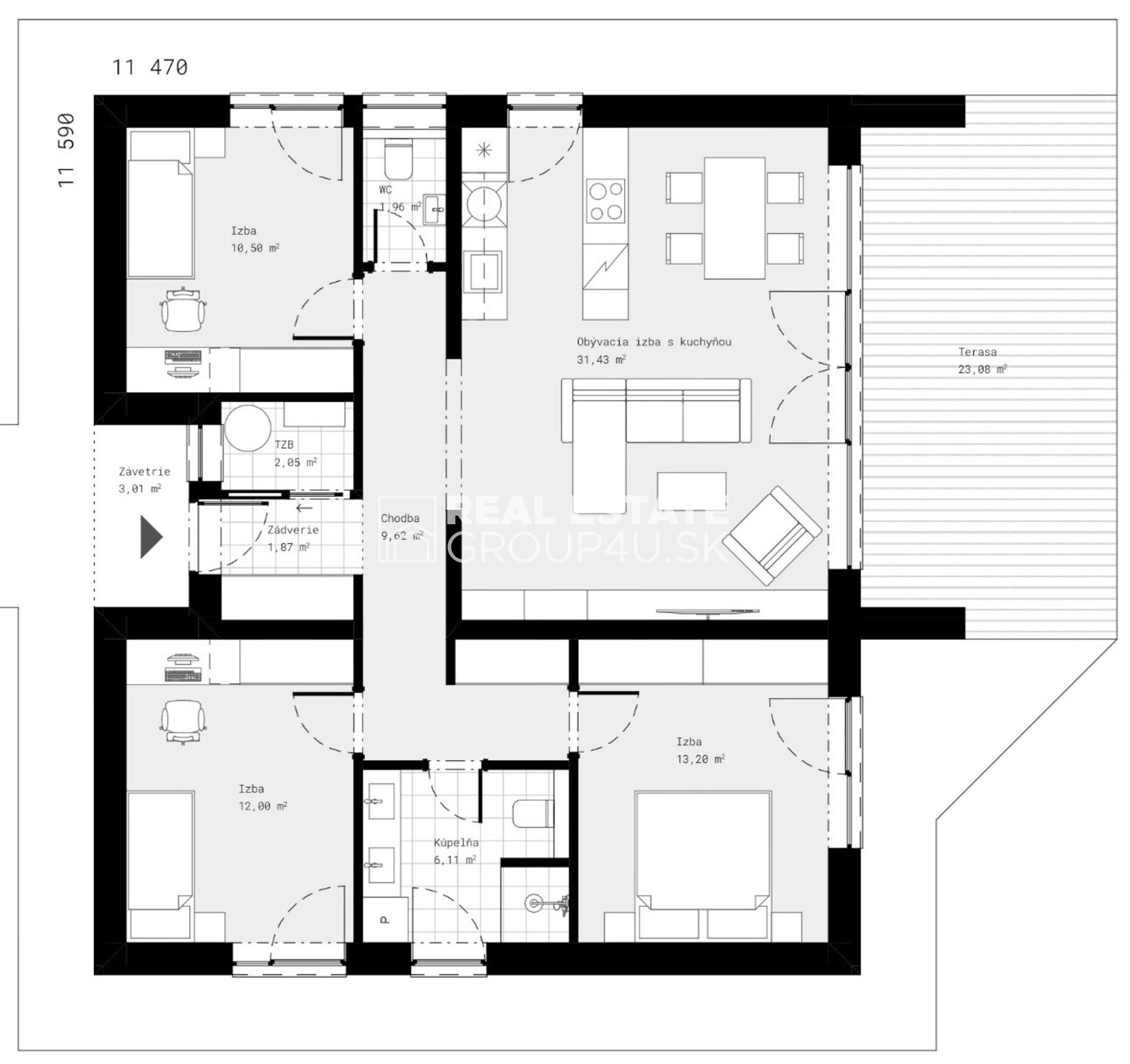
Navrhovaný 4-izbový bungalov spĺňa najvyššie nároky na súčasné rodinné bývanie. Premyslená dispozícia zabezpečuje maximálnu mieru súkromia pre každého člena domácnosti, pričom veľkorysá terasa orientovaná do prírody vytvára ideálny priestor na oddych a relax.

Veľké presklené plochy, dostatok denného svetla a plynulé prepojenie interiéru s exteriérom dotvárajú pokojnú a harmonickú atmosféru bývania v súlade s okolitou krajinou.


PARAMETRE BUNGALOVU
• úžitková plocha: 86,88 m2
• zastavaná plocha: 132,93 m2
• rozmery domu: 11,59 m x 11,47 m
• plocha terasy: 24,36 m2
• obytné miestnosti: 4


CENA DOMU NA KĽÚČ SPOLU S POZEMKOM 229 500,- €
CENA NEZAHŔŇA PRÍPOJKY INŽINIERSKÝCH SIETÍ

Na želanie klienta je možná individuálna architektonická úprava alebo realizácia iného rezidenčného konceptu.

LINK na ponuku rodinných domov:

https://www.realestategroup4u.sk/domy-na-kluc

VÝHODY PROJEKTU
• katalógový alebo individuálny projekt
• energetický certifikát A0
• mesačné náklady na vykurovanie do 140 €
• možnosť realizácie: nízkoenergetický / pasívny / nulový dom
• certifikát kvality stavby
• záručný aj pozáručný servis


VARIANTY VÝSTAVBY
• hrubá stavba
• holodom
• na kľúč


TECHNOLÓGIA VÝSTAVBY
• murovaný dom (tehla, Ytong)
• betónový monolit


SLUŽBY PRE VÁS
• financovanie a hypotéku
• právny servis
• kataster
• inžinierske siete
• kompletný inžiniering
• stavebné povolenie
• koordináciu výstavby
• kolaudáciu RD

Call centrum: 0911 175 510

 

Vlastnosti

Status:
aktívne
Vlastníctvo:
osobné
Plocha pozemku:
1488 m2
Typ zeme:
rovina
Úžitková plocha:
87 m2
Zastavaná plocha:
133 m2
Stav:
novostavba
Počet izieb:
4
Energetický certifikát:
A
Energetická náročnosť budovy:
Nízkoenergetický
Terasa:
áno
Celková plocha:
1488 m2
Počet terás:
1
Inžinierske siete:
áno
Elektrika:
áno
Elektrika - na pozemku:
áno
Vykurovanie - podlahové:
áno

Informatívna úverová kalkulačka

Pozrieť na mape

Maklér

Radi Vám poradíme

Podobné nehnuteľnosti