Používame cookies

Súbory cookie a ďalšie technológie sledovania používame na zlepšenie vášho zážitku z prehliadania našich webových stránok, na to, aby sme vám zobrazovali prispôsobený obsah a cielené reklamy, na analýzu návštevnosti našich webových stránok a na pochopenie toho, odkiaľ naši návštevníci prichádzajú. Viac info

 

PROJEKT NKLC 12

Interné ID: 12823249
Druh: Domy
Typ: Predaj
Typ domu: Rodinný dom
Iné:
115 900 €
cena na kľúč v prevedení štandard

Popis nehnuteľnosti

Realitná kancelária REG4U Vám ponúka projekt:

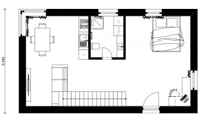
LOWCOST NKLC 12 parametre:

  • úžitková plocha:       110 m2
  • zastavaná plocha:       69 m2
  • rozmery domu:      10,84 x 6,34 m

Výhody projektu:

  • katalógový projekt
  • energetický certifikát v triede A0, mesačné náklady na vykurovanie do 70,-€/mesiac 
  • realizácia voliteľných súčastí stavby – napr. alarm, kamerový systém, rekuperácia, fotovoltika
  • certifikát kvality stavby
  • záručný a pozáručný servis

Zhotovenie stavby:

  • tehla, Ytong, betónový monolit

Predpokladaný termín dokončenia hrubej stavby v závislosti od zvolených materiálov už do 1 mesiaca.

V projekte je možnosť bezplatných, malých úprav v dispozičnom riešení interiéru stavby, zrkadlové otočenie, zmena umiestnenia terasovej plochy /v rámci projektových možností/.

Cena NA KĽÚČ v prevedení ŠTANDARD /pri rovinatom pozemku/: 115 900.- € (bez DPH)

V REG4U vybavíme za Vás

  • hypotéku a právne služby
  • kataster
  • inžinierske siete
  • koordináciu projektu a výstavby 
  • stavebné povolenie
  • kolaudáciu
  • služby interiérového dizajnéra

Pre viac informácií kontaktujte: 0911 175 510

Vlastnosti

Status:
aktívne
Vlastníctvo:
osobné
Úžitková plocha:
110 m2
Zastavaná plocha:
69 m2
Stav:
novostavba
Energetický certifikát:
A
Energetická náročnosť budovy:
Nízkoenergetický
Celková plocha:
110 m2
Vykurovanie - podlahové:
áno

Informatívna úverová kalkulačka

Pozrieť na mape

Maklér

     

   V obchode pôsobím už od roku 2002. Ako manažérka a majiteľka firmy som sa počas svojej kariéry denne stretávala s prácou s ľuďmi i nehnuteľnosťami. Napokon som sa v roku 2017 rozhodla spojiť obe oblasti - personálnu aj realitnú do mojej hlavnej a zároveň jedinej činnosti. Založila som realitnú kanceláriu. 

   Teší ma, že v Real Estate Group4U si smiem sama vyberať kvalitných ľudí, ktorým dôverujem. Práve vzájomná dôvera mi, spolu s mojím tímom a obchodnými partnermi, umožňuje ponúkať klientom komplexné riešenia, s ktorými sú spokojní. Od hľadania, predaja či prenájmu nehnuteľností na Slovensku aj v zahraničí, cez financovanie, právne a konzultačné poradenstvo až po výstavbu vysnívaného domu. Kvalita, komplexnosť a spokojnosť - tým sa riadim pri svojej práci.

Radi Vám poradíme

Podobné nehnuteľnosti