| Interné ID: | 12823250 | 
|---|---|
| Druh: | Domy | 
| Typ: | Predaj | 
| Typ domu: | Rodinný dom | 
| Iné: | 
Realitná kancelária REG4U Vám ponúka projekt:
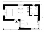
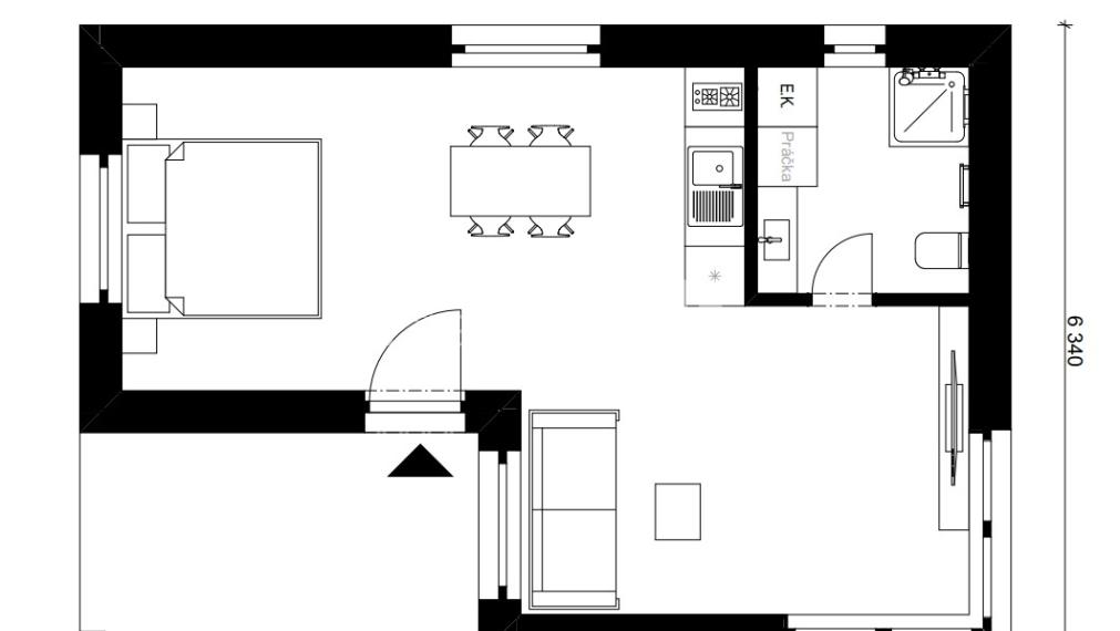
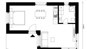
LOWCOST NKLC 14 parametre:
Výhody projektu:
Zhotovenie stavby:
Predpokladaný termín dokončenia hrubej stavby v závislosti od zvolených materiálov už do 1 mesiaca.
V projekte je možnosť bezplatných, malých úprav v dispozičnom riešení interiéru stavby, zrkadlové otočenie, zmena umiestnenia terasovej plochy /v rámci projektových možností/.
Cena NA KĽÚČ v prevedení ŠTANDARD /pri rovinatom pozemku/: 74 300.- € (bez DPH)
V REG4U vybavíme za Vás
Pre viac informácií kontaktujte: 0911 175 510
 
                                        konateľ, CEO
 
                                                                                            
V obchode pôsobím už od roku 2002. Ako manažérka a majiteľka firmy som sa počas svojej kariéry denne stretávala s prácou s ľuďmi i nehnuteľnosťami. Napokon som sa v roku 2017 rozhodla spojiť obe oblasti - personálnu aj realitnú do mojej hlavnej a zároveň jedinej činnosti. Založila som realitnú kanceláriu.
Teší ma, že v Real Estate Group4U si smiem sama vyberať kvalitných ľudí, ktorým dôverujem. Práve vzájomná dôvera mi, spolu s mojím tímom a obchodnými partnermi, umožňuje ponúkať klientom komplexné riešenia, s ktorými sú spokojní. Od hľadania, predaja či prenájmu nehnuteľností na Slovensku aj v zahraničí, cez financovanie, právne a konzultačné poradenstvo až po výstavbu vysnívaného domu. Kvalita, komplexnosť a spokojnosť - tým sa riadim pri svojej práci.