Používame cookies

Súbory cookie a ďalšie technológie sledovania používame na zlepšenie vášho zážitku z prehliadania našich webových stránok, na to, aby sme vám zobrazovali prispôsobený obsah a cielené reklamy, na analýzu návštevnosti našich webových stránok a na pochopenie toho, odkiaľ naši návštevníci prichádzajú. Viac info

 

Zanzibar - 1 spálňový bungalov v lokalite Pongwe Bay

Interné ID: 12823187
Ulica: Pongwe Bay
Kraj: Zanzibar
Druh: Domy
Typ: Predaj
Typ domu: Rodinný dom
Iné:
68 000 €
vrátane pozemku

Popis nehnuteľnosti

Ponúkame Vám na  predaj  menšie bungalovy na ostrove Zanzibar – časť Pongwe Bay. Na pozemku o rozlohe 10 000 m² sa nachádza desať samostatných parciel o výmere 500 m². V júli 2022 bola na tomto pozemku zahájená výstavba desiatich samostatných bungalovov.

Možnosť výberu z dvoch typov :

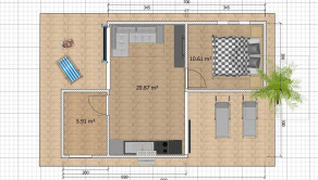
Bungalov A s rozlohou obytnej plochy 37 m² pozostáva z dvoch izieb: obývacia izba spojená s kuchyňou o výmere 20 m², spálňa o výmere 10 m² a kúpeľňa o výmere 6 m². Súčasťou bungalovu sú aj dve vonkajšie terasy o výmere 10,5 m² a 6 m² . Bungalov bude dokončený v prevedení Basic.

Bungalov B s rozlohou obytnej plochy 53 m² pozostáva z troch izieb: obývacia izba spojená s kuchyňou o výmere 21 m², dvoch spální, každá o výmere 10 m² a dvoch kúpeľní , každá  o výmere 6 m². Súčasťou bungalovu sú aj dve vonkajšie terasy o výmere 21 m²  a 6 m². Bungalov bude dokončený v prevedení  Basic.

Štandardná veľkosť pozemku, na ktorom je bungalov postavený je 20×25 metrov. Presná poloha a orientácia nehnuteľnosti na pozemku, závisí od požiadaviek klienta a podmienok prostredia.

Výhody stavby v prevedení Basic:

  • základy sú betónové, stavba je murovaná postavená na základovej betónovej doske s pultovou, betónovou, izolovanou strechou
  • veľkoplošné izolačné presklenia o rozmeroch: 300 x 230 cm v systéme Multi Sliding – Aluplast
  • sklopné, otváracie izolačné okná v spálni a kúpeľni
  • dlažba vo všetkých izbách, dlažba a obklad v kúpeľni
  • vonkajšie terasy dláždené prírodným kameňom Tanga Stone
  • kúpeľňa je zariadená vrátene sanity(sprchový kút, umývadlo, toaleta)
  • bojler na ohrev teplej vody
  • v prípade záujmu je možné doinštalovať klimatizáciu, cena jednej klimatizácie je približne 500,- € + montáž

Výhody ponuky:

  • 100% vlastníctvo nehnuteľnosti pre cudzincov
  • nadobúdací doklad a certifikát o vlastníctve nehnuteľnosti
  • osobné užívanie bungalovu v priebehu celého roka
  • vzdialenosť k pláži Indického oceánu len 150 m

Výhody lokality:

  • medzinárodné letisko a prístav vo vzdialenosti  do 45 km
  • možné letecké spojenie z Viedne, Bratislavy, Prahy a hlavných európskych miest
  • priemerné ročné teploty 24°C – 32°C
  • teplota vody na pobreží v mesiacoch december až apríl 30°C – 34°C
  • ”high season” až 10 mesiacov v roku

Cena vrátene pozemku o výmere 500 m²:

Bungalov A Basic – 68 000 EUR (37 m² obytnej plochy + 16,5 m² terasy)

Ponuka ID 12823187 na stránke: realestategroup4u.sk

Viac ponúk pre zahraničné nehnuteľnosti a viac info na: realestategroup4u.com

FB+IG: realestategroup4u

Call centrum: 0911 175 510

Vlastnosti

Status:
aktívne
Vlastníctvo:
osobné
Plocha pozemku:
500 m2
Typ zeme:
rovina
Šírka pozemku:
25 m
Dĺžka pozemku:
20 m
Úžitková plocha:
37 m2
Zastavaná plocha:
55 m2
Stav:
Vo výstavbe
Počet izieb:
2
Typ výbavy:
čiastočne vybavený
Terasa:
áno
Celková plocha:
55 m2
Terasa plocha:
17.5 m2
Počet terás:
2
Inžinierske siete:
áno
Voda:
áno
Elektrika:
áno

Informatívna úverová kalkulačka

Pozrieť na mape

Maklér

Petra Sýkorová

Petra Sýkorová

realitný maklér pre zahraničie

  • English
  • Pусский
  • narks

 

„Svet nehnuteľností nemá hranice. Investujte tam, kde trh rastie.“

Radi Vám poradíme

Podobné nehnuteľnosti