Používame cookies

Súbory cookie a ďalšie technológie sledovania používame na zlepšenie vášho zážitku z prehliadania našich webových stránok, na to, aby sme vám zobrazovali prispôsobený obsah a cielené reklamy, na analýzu návštevnosti našich webových stránok a na pochopenie toho, odkiaľ naši návštevníci prichádzajú. Viac info

 

5-IZBOVÝ POSCHODOVÝ DOM

Interné ID: 12823309
Ulica: Púchov
Obec: Púchov
Okres: Púchov
Kraj: Trenčiansky kraj
Druh: Domy
Typ: Predaj
Typ domu: Rodinný dom
Iné:
138 000 €
Cena domu bez garáže

Popis nehnuteľnosti

Realitná kancelária REG4U Vám ponúka na pozemku v okolí Púchova VÝSTAVBU poschodového rodinného domu - 5 izbového bungalovu typ VDD 15 so zaujímavou, funkčnou dispozíciou pre náročného klienta: 

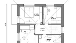
  • zastavaná plocha:     72 m2
  • úžitková plocha:       104,41 m2
  • rozmery domu:         8 x 9 m
  • obytné miestnosti:    5

Ponuku nájdete na stránke: realestategroup4u.sk, ID: 12823309

Cena RD v 2 variantoch možnej výstavby vrátane DPH:

HOLODOM: 129 000 .-€

DOM NA KĽÚČ: 138 000.-€

*cena domu a zastavaná plocha je bez garáže

CENA DOMU NEZAHŔŇA PRÍPOJKY INŽINIERSKÝCH SIETÍ A POZEMOK.  VIAC INFO O POZEMKU V RK.

 V prípade, že nemáte vlastný pozemok, obráťte sa na nás a my Vám radi pomôžeme nájsť vhodnú parcelu pre Váš dom.


Výhody projektu:

  • katalógový projekt – výhodná cenapoužité kvalitné materiály
  • rýchlosť výstavby
  • energetický certifikát v triede A0, mesačné náklady na vykurovanie do 150,-€/mesiac
  • záručný a pozáručný servis

Zhotovenie stavby:

  • montovaná

Predpokladaný termín dokončenia hrubej stavby už do 2 týždňov.

V projekte je možnosť bezplatných, malých úprav v dispozičnom riešení interiéru stavby v rámci projektových možností.


V REG4U vybavíme za Vás:

  • hypotéku a právne služby
  • kataster
  • inžinierske siete
  • koordináciu projektu a výstavby
  • stavebné povolenie
  • kolaudáciu
  • služby interiérového dizajnéra

Ponuku nájdete na našej web stránke v kategórii Domy na kľúč: https://www.realestategroup4u.sk/domy-na-kluc 

Call centrum: 0911 175 510

Vlastnosti

Status:
aktívne
Vlastníctvo:
osobné
Plocha pozemku:
1 m2
Úžitková plocha:
104 m2
Zastavaná plocha:
72 m2
Podlahová plocha:
104 m2
Stav:
novostavba
Počet izieb:
5
Celková plocha:
104.41 m2
Vykurovanie - podlahové:
áno

Informatívna úverová kalkulačka

Pozrieť na mape

Maklér

Alena Večerková

Alena Večerková

call centrum / klientská podpora

  • narks

 

 „Váš prvý kontakt s profesionálnym svetom realít začína tu.“

   Som prvým hlasom, ktorý v REG4U počujete, a mojím poslaním je zabezpečiť, aby sa vaša požiadavka dostala do správnych rúk. Starám sa o to, aby naša komunikácia s klientmi bola plynulá, rýchla a efektívna. Či už potrebujete informácie o konkrétnej nehnuteľnosti, alebo máte otázky k našim službám výstavby, som tu, aby som vám poskytla potrebnú podporu a nasmerovala vás k našim špecialistom.“

Moja špecializácia:

  • koordinácia klientskych dopytov a prvotná konzultácia
  • zákaznícka podpora a servis
  • správa termínov a informovanosť o portfóliu služieb

Radi Vám poradíme

Podobné nehnuteľnosti