Používame cookies

Súbory cookie a ďalšie technológie sledovania používame na zlepšenie vášho zážitku z prehliadania našich webových stránok, na to, aby sme vám zobrazovali prispôsobený obsah a cielené reklamy, na analýzu návštevnosti našich webových stránok a na pochopenie toho, odkiaľ naši návštevníci prichádzajú. Viac info

 

BUNGALOV S 2 TERASAMI

Interné ID: 12823373
Ulica: Nitra
Obec: Nitra
Okres: Nitra
Kraj: Nitriansky kraj
Druh: Domy
Typ: Predaj
Typ domu: Rodinný dom
Iné:
150 000 €
cena na kľúč vrátane prestrešených častí

Popis nehnuteľnosti

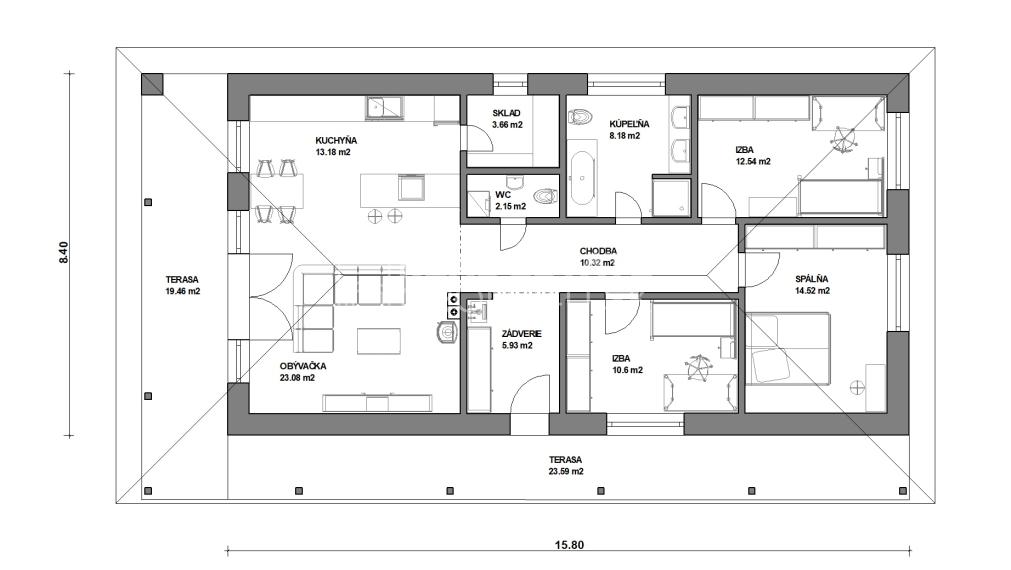
Realitná kancelária REG4U Vám ponúka na pozemku v okolí mesta Nitra VÝSTAVBU RODINNÉHO DOMU - 4 izbového bungalovu typ VDD 06 s dvoma terasami otočenými na 2 svetové strany s celkovou plochou 43 m2:

  • zastavaná plocha:    132,72 m2
  • úžitková plocha:      104,16 m2
  • rozmery domu:        8,4 x 15,8 m
  • obytné miestnosti:   4

Ponuku nájdete na stránke: realestategroup4u.sk, ID: 12823373

Cena RD v 2 variantoch možnej výstavby vrátane DPH:

HOLODOM: 142 000.-€

DOM NA KĽÚČ: 150 000.-€

*cena domu a zastavaná plocha je vrátane prestrešenej časti 23,59 a 19.46 m2

CENA DOMU NEZAHŔŇA PRÍPOJKY INŽINIERSKÝCH SIETÍ A POZEMOK.  VIAC INFO O POZEMKU V RK.

Výhody ponuky:

  • katalógový projekt – výhodná cena
  • použité kvalitné materiály
  • rýchlosť výstavby
  • energetický certifikát v triede A0, mesačné náklady na vykurovanie do 100,-€/mesiac
  • záručný a pozáručný servis

Zhotovenie stavby:

  • montovaná

Predpokladaný termín dokončenia hrubej stavby už do 2 týždňov.

V projekte je možnosť bezplatných, malých úprav v dispozičnom riešení interiéru stavby v rámci projektových možností.


V REG4U vybavíme za Vás:

  • finančné a právne služby
  • stavebné a územné konanie
  • inžinierske siete
  • kolaudáciu
  • služby interiérového dizajnéra

Ponuku nájdete na našej web stránke v kategórii Domy na kľúč: https://www.realestategroup4u.sk/domy-na-kluc 

Call centrum: 0911 175 510

Vlastnosti

Status:
aktívne
Vlastníctvo:
osobné
Úžitková plocha:
104.16 m2
Zastavaná plocha:
132.72 m2
Stav:
novostavba
Počet izieb:
4
Energetický certifikát:
A
Terasa:
áno
Celková plocha:
132.72 m2
Terasa plocha:
43 m2
Počet terás:
2
Vykurovanie - podlahové:
áno

Informatívna úverová kalkulačka

Pozrieť na mape

Maklér

Alena Večerková

Alena Večerková

call centrum / klientská podpora

  • narks

 

 „Váš prvý kontakt s profesionálnym svetom realít začína tu.“

   Som prvým hlasom, ktorý v REG4U počujete, a mojím poslaním je zabezpečiť, aby sa vaša požiadavka dostala do správnych rúk. Starám sa o to, aby naša komunikácia s klientmi bola plynulá, rýchla a efektívna. Či už potrebujete informácie o konkrétnej nehnuteľnosti, alebo máte otázky k našim službám výstavby, som tu, aby som vám poskytla potrebnú podporu a nasmerovala vás k našim špecialistom.“

Moja špecializácia:

  • koordinácia klientskych dopytov a prvotná konzultácia
  • zákaznícka podpora a servis
  • správa termínov a informovanosť o portfóliu služieb

Radi Vám poradíme

Podobné nehnuteľnosti