Používame cookies

Súbory cookie a ďalšie technológie sledovania používame na zlepšenie vášho zážitku z prehliadania našich webových stránok, na to, aby sme vám zobrazovali prispôsobený obsah a cielené reklamy, na analýzu návštevnosti našich webových stránok a na pochopenie toho, odkiaľ naši návštevníci prichádzajú. Viac info

 

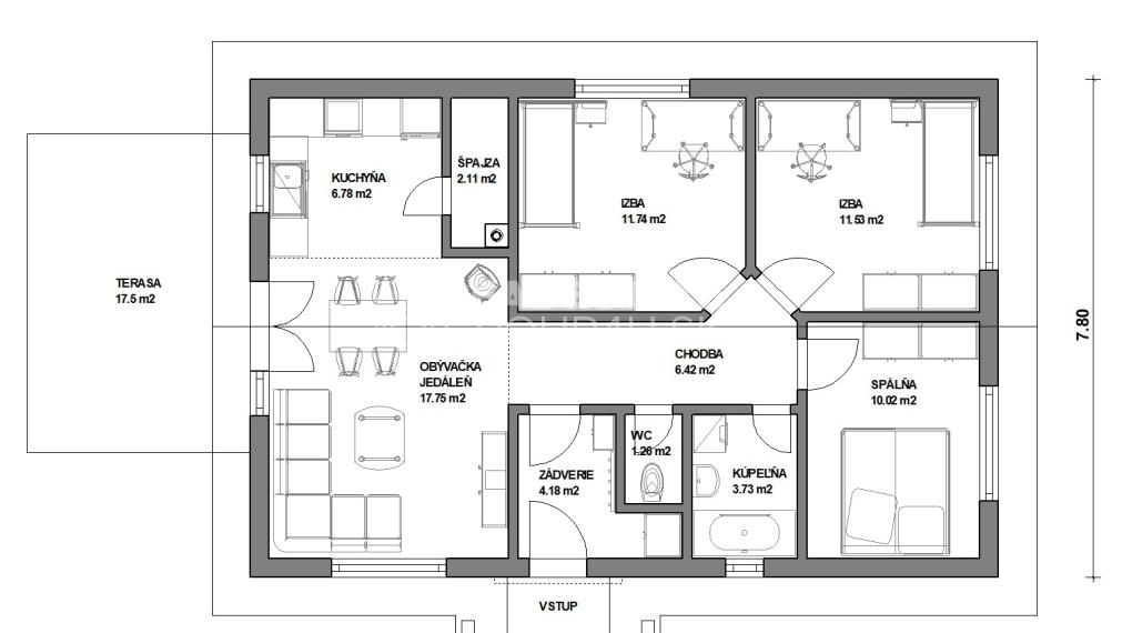
4 IZBOVÝ BUNGALOV - 108 000.-€

Interné ID: 12823374
Ulica: Topoľčany
Obec: Topoľčany
Okres: Topoľčany
Kraj: Nitriansky kraj
Druh: Domy
Typ: Predaj
Typ domu: Rodinný dom
Iné:
108 000 €
cena na kľúč v prevedení štandard je bez terasy

Popis nehnuteľnosti

Realitná kancelária REG4U Vám ponúka na pozemku v okolí Topoľčian  VÝSTAVBU RODINNÉHO DOMU - 4 izbového bungalovu typ VDT 04 s  jednoduchou a funkčnou dispozíciou:

  • zastavaná plocha:  91,4 m2
  • úžitková plocha:    75,5 m2
  • rozmery domu:      7,8 x 11,7 m
  • obytné miestnosti: 4

Ponuku nájdete na stránke: realestategroup4u.sk, ID: 12823374

Cena RD v 2 variantoch možnej výstavby vrátane DPH:

HOLODOM: 100 000 .-€

DOM NA KĽÚČ: 108 000.-€

*cena domu a zastavaná plocha je bez terasy

CENA DOMU NEZAHŔŇA PRÍPOJKY INŽINIERSKÝCH SIETÍ A POZEMOK. VIAC INFO O POZEMKU V RK.


Výhody ponuky:

  • katalógový projekt – výhodná cena
  • použité kvalitné materiály
  • rýchlosť výstavby
  • energetický certifikát v triede A0, mesačné náklady na vykurovanie do 100,-€/mesiac
  • záručný a pozáručný servis

Zhotovenie stavby:

  • montovaná

Predpokladaný termín dokončenia hrubej stavby už do 2 týždňov.

V projekte je možnosť bezplatných, malých úprav v dispozičnom riešení interiéru stavby v rámci projektových možností.


V REG4U vybavíme za Vás:

  • hypotéku a právne služby
  • kataster
  • inžinierske siete
  • koordináciu projektu a výstavby
  • stavebné povolenie
  • kolaudáciu
  • služby interiérového dizajnéra

Ponuku nájdete na našej web stránke v kategórii Domy na kľúč: https://www.realestategroup4u.sk/domy-na-kluc 

Call centrum: 0911 175 510

Vlastnosti

Status:
aktívne
Vlastníctvo:
osobné
Úžitková plocha:
75.5 m2
Zastavaná plocha:
91.4 m2
Stav:
novostavba
Počet izieb:
4
Energetický certifikát:
A
Terasa:
áno
Celková plocha:
91.4 m2
Terasa plocha:
17.5 m2
Počet terás:
1
Vykurovanie - podlahové:
áno

Informatívna úverová kalkulačka

Pozrieť na mape

Radi Vám poradíme

Podobné nehnuteľnosti