Používame cookies

Súbory cookie a ďalšie technológie sledovania používame na zlepšenie vášho zážitku z prehliadania našich webových stránok, na to, aby sme vám zobrazovali prispôsobený obsah a cielené reklamy, na analýzu návštevnosti našich webových stránok a na pochopenie toho, odkiaľ naši návštevníci prichádzajú. Viac info

 

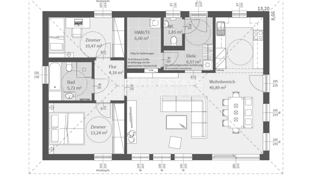
PROJEKT DM 02

Interné ID: 12823501
Druh: Domy
Typ: Predaj
Typ domu: Rodinný dom
Iné:
100 600 €
cena na kľúč v prevedení štandard

Popis nehnuteľnosti

Realitná kancelária REG4U Vám ponúka projekt:

MODULÁRNY BUNGALOV DM 02 parametre:

  • úžitková plocha:  94 m2
  • zastavaná plocha: 114,31 m2
  • rozmery domu:  13,2 x 8,66 m 
  • obytné miestnosti: 3

Výhody projektu:

  • energetický certifikát v triede A0, mesačné náklady na vykurovanie do 100,-€/mesiac 
  • realizácia voliteľných súčastí stavby – napr. alarm, kamerový systém, rekuperácia, krbový systém
  • certifikát kvality stavby
  • záručný a pozáručný servis

V projekte je možnosť bezplatných, malých úprav v dispozičnom riešení interiéru stavby v rámci projektových možností.

Zhotovenie stavby:

  • Špeciálne stavebné drevo – obvodové nosníky - KVH alebo BSH profily
  • Sendvičové panely – s jadrom z polystyrénu alebo minerálnej vlny
  • Vonkajšia úprava – fasádne omietky, kazetové systémy, kompozitné panely, plech, imitácia dreva alebo kameňa

Predpokladaný termín dokončenia hrubej stavby už do 5 dní.

V projekte je možnosť bezplatných, malých úprav v dispozičnom riešení interiéru stavby v rámci projektových možností.


Ceny RD v 3 variantoch možnej výstavby bez DPH:

HRUBÁ STAVBA: 70 800-€
HOLODOM:  95 600,-€
NA KĽÚČ v štandarde: 100 600,-€

CENA DOMU NEZAHŔŇA PROJEKTOVÚ DOKUMENTÁCIU, TERASU A NAPOJENIE INŽINIERSKYCH SIETÍ K DOMU.

Možnosť realizácie katalógového, príp. individuálneho projektu RD.

V REG4U vybavíme za Vás

  • hypotéku a právne služby
  • kataster
  • inžinierske siete
  • koordináciu projektu a výstavby 
  • stavebné povolenie
  • kolaudáciu
  • služby interiérového dizajnéra

Pre viac informácií kontaktujte: 0911 175 510

Vlastnosti

Status:
aktívne
Vlastníctvo:
osobné
Úžitková plocha:
94 m2
Zastavaná plocha:
114.31 m2
Stav:
novostavba
Počet izieb:
3
Energetický certifikát:
A
Energetická náročnosť budovy:
Nízkoenergetický
Terasa:
áno
Celková plocha:
114.31 m2
Počet terás:
1
Vykurovanie - podlahové:
áno

Informatívna úverová kalkulačka

Pozrieť na mape

Maklér

 

 „Mojím cieľom je sprevádzať vás cestou k novému domovu tak, aby ste namiesto starostí s jeho kúpou, či výstavbou zažívali radosť z výsledku - kvalita a odborný dohľad sú u mňa na prvom mieste.“

   V obchode pôsobím už od roku 2002. Ako manažérka a majiteľka firmy som svoju kariéru vybudovala na dvoch pilieroch: práci s ľuďmi a precíznosti v detailoch. V roku 2017 som sa rozhodla tieto skúsenosti naplno vložiť do vlastnej realitnej a stavebno-konzultačnej spoločnosti Real Estate Group4U.

Dnes už pre našich klientov nie sme len sprostredkovateľmi predaja. Pod mojím vedením sa REG4U vyprofilovalo na partnera, ktorý dokáže zastrešiť kompletný životný cyklus nehnuteľnosti. Teší ma, že si do svojho tímu vyberám špičkových odborníkov, ktorým plne dôverujem. Spoločne s našimi partnermi dokážeme premeniť prázdny pozemok na skolaudovaný rodinný dom.

V čom spočíva moja pridaná hodnota pre vás? Dohliadam na to, aby sme vám prinášali riešenia, ktoré dávajú zmysel ekonomicky aj technicky. Či už ide o hľadanie ideálneho pozemku, zabezpečenie financovania, právny servis alebo komplexnú koordináciu výstavby vášho domu, stojím za kvalitou našich služieb.

Kvalita, komplexnosť a transparentnosť – to sú hodnoty, ktorými sa riadim pri každom projekte. 

Radi Vám poradíme

Podobné nehnuteľnosti