Používame cookies

Súbory cookie a ďalšie technológie sledovania používame na zlepšenie vášho zážitku z prehliadania našich webových stránok, na to, aby sme vám zobrazovali prispôsobený obsah a cielené reklamy, na analýzu návštevnosti našich webových stránok a na pochopenie toho, odkiaľ naši návštevníci prichádzajú. Viac info

 

LUKRATÍVNY POZEMOK S BUNGALOVOM NA KĽÚČ - BITAROVÁ

Interné ID: 12823682
Ulica: Bitarová
Obec: Bitarová
Okres: Žilina
Kraj: Žilinský kraj
Druh: Pozemky
Typ: Predaj
Typ pozemku: Pozemok pre rodinné domy
Iné:
320 200 €
Cena domu na kľúč spolu s pozemkom

Popis nehnuteľnosti

Realitná kancelária REG4U Vám ponúka na PREDAJ lukratívny, slnečný, stavebný pozemok vo výmere 1100 m2 v prekrásnom prostredí v obce BITAROVÁ.

Exkluzívny stavebný pozemok s celodenným slnečným svitom, nádherným panoramatickým výhľadom na okolitú prírodu v mierne svahovitom teréne je ideálny pre výstavbu Vášho nového rodinného domu - Vášho DOMOVA.

Pozemok sa nachádza v novo vzniknutej časti obce a disponuje schváleným právoplatným územnoplánovacím rozhodnutím, čo umožňuje okamžitú výstavbu. Celková výmera  pozemku 1020 m2 + podiel na prístupovej ceste.

Na hranici pozemku je umiestnená rozvodová elektrická skrinka na pripojenie na elektrickú sieť, v prístupovej ceste je vedený vodovod.

Exkluzívny moderný rodinný dom s výraznými architektonickými prvkami. Dominantou nehnuteľnosti je impozantné presklenie cez dve podlažia, ktoré zabezpečuje výnimočné presvetlenie interiéru a zároveň vytvára jedinečné prepojenie obytného priestoru so záhradou.

Dispozičné riešenie domu je navrhnuté s dôrazom na vzdušnosť, svetlosť a funkčnosť. Otvorená denná zóna ponúka moderný životný štýl, zatiaľ čo súkromná časť domu zabezpečuje pokojné zázemie pre rodinný život.

Ponuku nájdete na stránke: realestategroup4u.sk, ID: 12823682

VÝHODY PONUKY

•      Lukratívna lokalita Bitarová vyhľadávaná oblasť s prestížou
•      Výmera 1100 m2 ideálna pre výstavbu rodinného domu
•      Dostatočná výmera na výstavbu RD, záhradu – úžitkovú aj okrasnú či relax zónu
•      Pozemok je výborne orientovaný a celý deň slnečný
•      Panoramatický výhľad na dolinu a okolitú prírodu v blízkosti lesa
•      Výborná dostupnosť do mesta Žilina autom bez dopravných obmedzení
•      Na hranici pozemku IS - elektrika, vodovod
•      Tichá a bezpečná lokalita

Ponúkame možnosť výstavby katalógového alebo individuálneho projektu RD

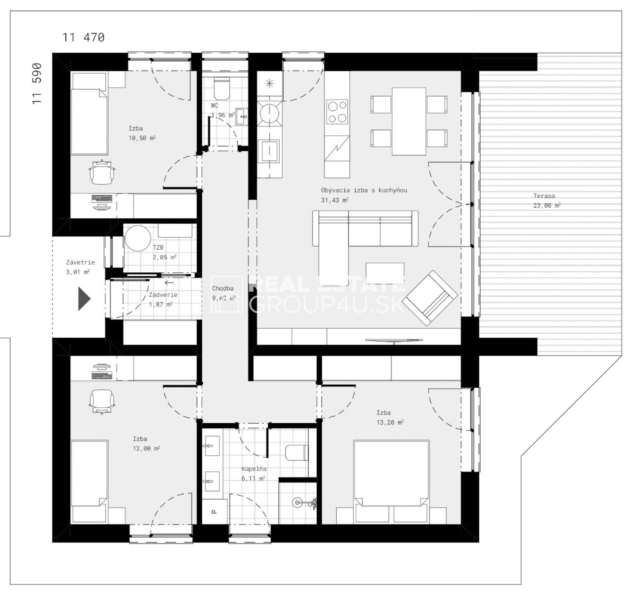
PARAMETRE BUNGALOVU

• úžitková plocha: 86,88 m2
• zastavaná plocha bez terasy: 132,93 m2
• rozmery domu: 11,59 m x 11,47 m
• plocha terasy: 24,36 m2
• obytné miestnosti: 4

RD v 2 variantoch možnej výstavby
•      HOLODOM
•      DOM NA KĽÚČ 


CENA DOMU NA KĽÚČ SPOLU S POZEMKOM 320 200,- €
CENA NEZAHŔŇA PRÍPOJKY INŽINIERSKÝCH SIETÍ

Ak Vám nevyhovuje naša ponuka navrhovaného moderného bungalovu a máte inú predstavu a požiadavky o Vašom dome, môžete si vybrať z našej ponuky rodinných domov. Bližšie informácie Vám radi poskytneme v našej realitnej kancelárii.

Ponuka projektov rodinných domov: https://www.realestategroup4u.sk/domy-na-kluc

Predpokladaný termín dokončenia hrubej stavby v závislosti od zvolených materiálov už do 1 mesiaca.

VÝHODY PROJEKTU
•      katalógový projekt
•      energetický certifikát v triede A0
•      mesačné náklady na vykurovanie do 150,-€/mesiac
•      možnosť vyhotovenia domu: nízkoenergetický, pasívny, nulový
•      realizácia voliteľných súčastí stavby – napr. alarm, kamerový systém, rekuperácia, krb a pod.
•      certifikát kvality stavby
•      záručný a pozáručný servis


ZHOTOVENIE STAVBY
•      murovaná - tehla, Ytong
•      betónový monolit

S financovaním kúpy pozemku, prípadne s postupnou výstavbou domu cez hypotéku vám radi pomôžeme.

V REG4U VYBAVÍME ZA VÁS
•      hypotéku a právne služby
•      kataster
•      inžinierske siete
•      koordináciu projektu a výstavby
•      komplet inžiniering k vybaveniu stavebného povolenia
•      kolaudáciu RD
•      služby interiérového dizajnéra

Call centrum: 0911 175 510

Vlastnosti

Status:
aktívne
Vlastníctvo:
osobné
Plocha pozemku:
1100 m2
Typ zeme:
mierne svahovitá
Teritórium:
Intravilán
Šírka pozemku:
23 m
Dĺžka pozemku:
45,50 m
Celková plocha:
1100 m2
Inžinierske siete:
áno
Voda:
áno
Elektrika:
áno
Voda - blízko pozemku:
áno
Elektrika - na pozemku:
áno

Pozrieť na mape

Maklér

Radi Vám poradíme

Podobné nehnuteľnosti