Používame cookies

Súbory cookie a ďalšie technológie sledovania používame na zlepšenie vášho zážitku z prehliadania našich webových stránok, na to, aby sme vám zobrazovali prispôsobený obsah a cielené reklamy, na analýzu návštevnosti našich webových stránok a na pochopenie toho, odkiaľ naši návštevníci prichádzajú. Viac info

 

PROJEKT KK A

Interné ID: 12823690
Druh: Domy
Typ: Predaj
Typ domu: Rodinný dom
Iné:
Cena v RK

Popis nehnuteľnosti

Realitná kancelária REG4U Vám ponúka projekt domu na mieru typ KK A - moderná fasáda, elegantné línie a priestranné riešenie. Tento dom je nielen miestom na život, ale aj vašou vizitkou. Ideálny pre klientov, ktorí si potrpia na štýl a kvalitu.

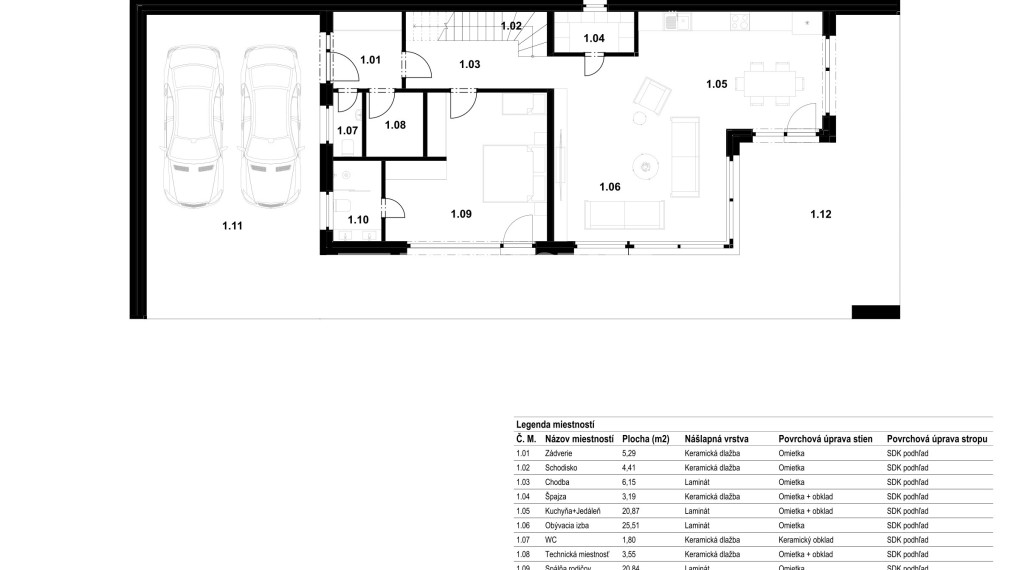
POSCHODOVÝ DOM KK A parametre:

  • úžitková plocha: 254,48 m2
  • zastavaná plocha: 240 m2
  • rozmery domu:  24 m x  10 m 
  • obytné miestnosti: 4

Ponuku nájdete na stránke: realestategroup4u.sk, ID: 12823690

Výhody projektu na mieru:

  • individuálny projekt podľa vašich potrieb a štýlu
  • maximálne využitie pozemku
  • flexibilita v dispozičnom riešení
  • efektívnejšie energetické riešenia
  • energetický certifikát v triede A0
  • možnosť vyhotovenia domu: nízkoenergetický, pasívny, nulový
  • realizácia voliteľných súčastí stavby – napr. alarm, kamerový systém, rekuperácia, krbový systém
  • certifikát kvality stavby
  • záručný a pozáručný servis

Zhotovenie stavby:

  • betónový monolit

RD je možné zrealizovať v 3 variantoch možnej výstavby:

  • hrubá stavba
  • holodom
  • na kľúč

INDIVIDUÁLNY  PROJEKT  NA  MIERU  -  CENA  NA  VYŽIADANIE  V  RK.

V REG4U vybavíme za Vás:

  • hypotéku a právne služby
  • kataster
  • inžinierske siete
  • koordináciu projektu a výstavby 
  • stavebné povolenie
  • kolaudáciu
  • služby interiérového dizajnéra

Pre viac informácií kontaktujte: 0911 175 510

Vlastnosti

Status:
aktívne
Vlastníctvo:
osobné
Úžitková plocha:
254.48 m2
Zastavaná plocha:
240 m2
Stav:
novostavba
Počet izieb:
4
Energetický certifikát:
A
Energetická náročnosť budovy:
Nízkoenergetický
Terasa:
áno
Garáž:
áno
Celková plocha:
254.48 m2
Počet terás:
2
Počet garáží:
2
Vykurovanie - podlahové:
áno

Pozrieť na mape

Maklér

 

 „Mojím cieľom je sprevádzať vás cestou k novému domovu tak, aby ste namiesto starostí s jeho kúpou, či výstavbou zažívali radosť z výsledku - kvalita a odborný dohľad sú u mňa na prvom mieste.“

   V obchode pôsobím už od roku 2002. Ako manažérka a majiteľka firmy som svoju kariéru vybudovala na dvoch pilieroch: práci s ľuďmi a precíznosti v detailoch. V roku 2017 som sa rozhodla tieto skúsenosti naplno vložiť do vlastnej realitnej a stavebno-konzultačnej spoločnosti Real Estate Group4U.

Dnes už pre našich klientov nie sme len sprostredkovateľmi predaja. Pod mojím vedením sa REG4U vyprofilovalo na partnera, ktorý dokáže zastrešiť kompletný životný cyklus nehnuteľnosti. Teší ma, že si do svojho tímu vyberám špičkových odborníkov, ktorým plne dôverujem. Spoločne s našimi partnermi dokážeme premeniť prázdny pozemok na skolaudovaný rodinný dom.

V čom spočíva moja pridaná hodnota pre vás? Dohliadam na to, aby sme vám prinášali riešenia, ktoré dávajú zmysel ekonomicky aj technicky. Či už ide o hľadanie ideálneho pozemku, zabezpečenie financovania, právny servis alebo komplexnú koordináciu výstavby vášho domu, stojím za kvalitou našich služieb.

Kvalita, komplexnosť a transparentnosť – to sú hodnoty, ktorými sa riadim pri každom projekte. 

Radi Vám poradíme

Podobné nehnuteľnosti