Používame cookies

Súbory cookie a ďalšie technológie sledovania používame na zlepšenie vášho zážitku z prehliadania našich webových stránok, na to, aby sme vám zobrazovali prispôsobený obsah a cielené reklamy, na analýzu návštevnosti našich webových stránok a na pochopenie toho, odkiaľ naši návštevníci prichádzajú. Viac info

 

POZEMOK NA SAMOTE S VÝSTAVBOU RD NA KĽÚČ- VEĽKÉ ROVNÉ

Interné ID: 12823703
Mestská časť: Ráztoky
Obec: Veľké Rovné
Okres: Bytča
Kraj: Žilinský kraj
Druh: Pozemky
Typ: Predaj
Typ pozemku: Pozemok pre rodinné domy
Iné:
225 680 €
cena POZEMKU s výstavbou RD na kľúč s garážou

Popis nehnuteľnosti

Realitná kancelária REG4U Vám ponúka na PREDAJ slnečný, stavebný pozemok na samote pri lese vo VEĽKOM ROVNOM časť Ráztoky vo výmere 1395 m2 s výstavbou na kľúč bungalov s garážou. 

Pozemok s veľkorysou výmerou sa nachádza na samote pod lesom na konci obce Veľké Rovné - časť Ráztoky s krásnym výhľadom. Územie na ktorom sa nachádza lukratívny pozemok je schválený v územnom pláne obce a na uvedenom pozemku sa môže uskutočniť výstavba rodinného domu IHNEĎ.  

Na hranici pozemku sa nachádzajú inžinierske siete - elektrika, voda - studňa. Príjazd na pozemok po obecnej ceste.

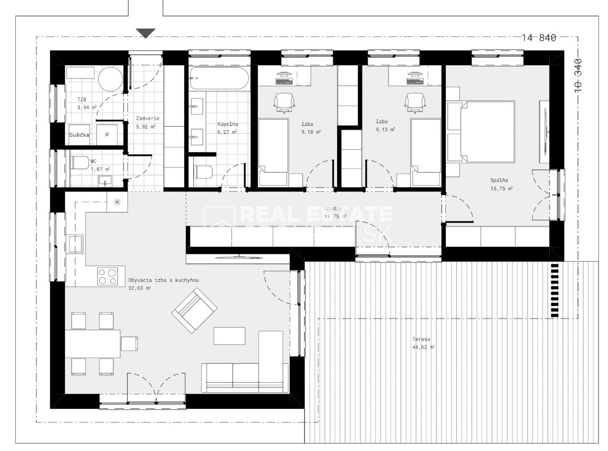
Na pozemku je navrhovaný moderný, nadčasový bungalov, ktorý sa pýši úžitkovou plochou 115 m2. Tento veľkorysý, priestranný 4-izbový bungalov s garážou je vďaka tomu dostatočne veľký a svoje súkromie si v ňom nájde každý člen rodiny. Priestranná terasa poskytuje maximálny komfort bývania a pocit súkromia pre viacčlennú rodinu.

Bungalov navrhnutý na pozemku, vnútornými priestormi uspokojí nároky na bývanie viacčlennej rodiny a poskytuje maximálny komfort bývania. 

Ak hľadáte exkluzívne bývanie pre Vašu rodinu s celodenným slnečným svitom, nádherným výhľadom a v pokojnej lokalite pri lese, Ráztoky sú ideálnym miestom pre výstavbu Vášho nového rodinného domu - Vášho DOMOVA. Lokalita prináša pokoj a kľud po vašej náročnej práci, kam uniknete od rušného mesta a strategická poloha pozemku Vám zaručí dokonalé bývanie IDEÁLNE PRE NÁROČNÉHO ZÁUJEMCU.  

Ponuku nájdete na stránke: realestategroup4u.sk, ID: 12823703

VÝHODY PONUKY
•      Lukratívna lokalita Veľké Rovné vyhľadávaná oblasť
•      Luxusný moderný priestranný bungalov s garážou
•      Výmera pozemku 1395 m² ideálna pre výstavbu RD
•      Dostatočná výmera na výstavbu rodinného domu, záhradu – úžitkovú aj okrasnú, či relax zónu
•      Panoramatický výhľad na dolinu a okolitú prírodu pri lesa
•      Výborná dostupnosť do mesta Bytča - 9 km  autom bez dopravných obmedzení
•      Na hranici pozemku IS - elektrika, voda - studňa
•      Príjazd po obecnej ceste
•      Tichá a bezpečná lokalita
•      Ponúkame možnosť výstavby katalógového alebo individuálneho projektu RD

PARAMETRE BUNGALOVU
•      zastavaná plocha: 162 m2
•      úžitková plocha: 115 m2
•      rozmery domu: 14 m x 10,50 m
•      obytné miestnosti: 4

Ceny RD v 2 variantoch možnej výstavby
•      HOLODOM
•      NA KĽÚČ 


CENA DOMU NA KĽÚČ SPOLU S POZEMKOM 225 680,- €
CENA NEZAHŔŇA PRÍPOJKY INŽINIERSKÝCH SIETÍ
 

Ponuka projektov rodinných domov: https://www.realestategroup4u.sk/domy-na-kluc

V projekte je možnosť bezplatných, malých úprav v dispozičnom riešení interiéru stavby v rámci projektových možností.

Predpokladaný termín dokončenia hrubej stavby v závislosti od zvolených materiálov už do 1 mesiaca.

VÝHODY PROJEKTU
•      katalógový projekt – výhodná cena
•      použité kvalitné materiály
•      rýchlosť výstavby
•      energetický certifikát v triede A0
•      mesačné náklady na vykurovanie do 160,-€/mesiac
•      záručný a pozáručný servis


ZHOTOVENIE STAVBY
•      murovaná - tehla, Ytong
•      betónový monolit

S financovaním kúpy pozemku a s postupnou výstavbou domu cez hypotéku Vám radi pomôžeme.

V REG4U VYBAVÍME ZA VÁS
•      hypotéku a právne služby
•      kataster
•      inžinierske siete
•      koordináciu projektu a výstavby
•      komplet inžiniering k vybaveniu stavebného povolenia
•      kolaudáciu RD
•      služby interiérového dizajnéra

Call centrum: 0911 175 510


 

 

Vlastnosti

Status:
aktívne
Vlastníctvo:
osobné
Plocha pozemku:
1395 m2
Typ zeme:
rovina
Teritórium:
Intravilán
Celková plocha:
1395 m2
Počet terás:
1
Inžinierske siete:
áno
Elektrika:
áno
Elektrika - na pozemku:
áno

Pozrieť na mape

Maklér

Radi Vám poradíme

Podobné nehnuteľnosti