Používame cookies

Súbory cookie a ďalšie technológie sledovania používame na zlepšenie vášho zážitku z prehliadania našich webových stránok, na to, aby sme vám zobrazovali prispôsobený obsah a cielené reklamy, na analýzu návštevnosti našich webových stránok a na pochopenie toho, odkiaľ naši návštevníci prichádzajú. Viac info

 

MODERNÝ RODINNÝ DOM - VEĽKÁ TERASA: 308 000,-€

Interné ID: 12823744
Obec: Piešťany
Okres: Piešťany
Kraj: Trnavský kraj
Druh: Domy
Typ: Predaj
Typ domu: Rodinný dom
Iné:
308 000 €
cena v holodom plus v prevedení štandard aj s terasou a garážou

Popis nehnuteľnosti

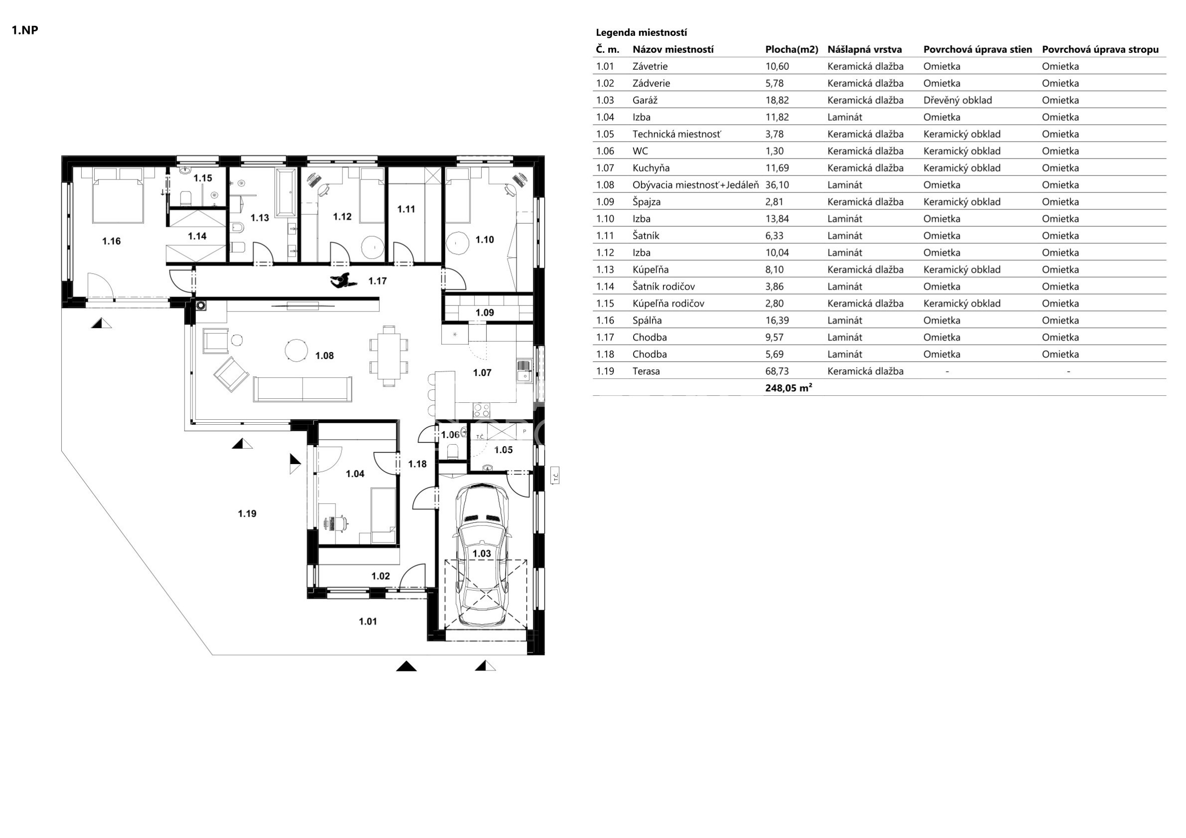
Realitná kancelária REG4U Vám ponúka na pozemku v okolí Piešťan VÝSTAVBU RODINNÉHO DOMU - 5 izbový moderný dom typ KK D s atypickou architektúrou s výstupom na terasu zo všetkých obytných miestností. Dom je riešený s dôrazom na komfort, modernosť a nadčasový dizajn.

BUNGALOV KK D parametre:

  • úžitková plocha: 248 m2
  • zastavaná plocha: 272,98 m2
  • rozmery domu: 17,10 m x 17,60 m 
  • obytné miestnosti: 5

Ponuku nájdete na stránke: realestategroup4u.sk, ID: 12823744

Výhody ponuky:

  • katalógový projekt
  • energetický certifikát v triede A0, mesačné náklady na vykurovanie do 250,-€/mesiac 
  • možnosť vyhotovenia domu: nízkoenergetický, pasívny, nulový
  • realizácia voliteľných súčastí stavby – napr. alarm, kamerový systém, rekuperácia, krbový systém
  • certifikát kvality stavby
  • záručný a pozáručný servis

Zhotovenie stavby:

  • betónový monolit

V projekte je možnosť bezplatných, malých úprav v dispozičnom riešení interiéru stavby v rámci projektových možností.


Ceny RD v 3 variantoch možnej výstavby :

HRUBÁ STAVBA: 192 500,- €
HOLODOM: 308 000,- €
NA KĽÚČ v prevedení ŠTANDARD vrátane terasy: info o cene v RK

CENA DOMU NEZAHŔŇA PRÍPOJKY INŽINIERSKÝCH SIETÍ A POZEMOK. VIAC INFO O POZEMKU V RK.  

V REG4U vybavíme za Vás

  • hypotéku a právne služby
  • kataster
  • inžinierske siete
  • koordináciu projektu a výstavby 
  • stavebné povolenie
  • kolaudáciu
  • služby interiérového dizajnéra

Ponuku nájdete na našej web stránke v kategórii Domy na kľúč: https://www.realestategroup4u.sk/domy-na-kluc 

Pre viac informácií kontaktujte: 0911 175 510

Vlastnosti

Status:
aktívne
Vlastníctvo:
osobné
Úžitková plocha:
248 m2
Zastavaná plocha:
272.98 m2
Stav:
novostavba
Počet izieb:
5
Energetický certifikát:
A
Energetická náročnosť budovy:
Nízkoenergetický
Terasa:
áno
Garáž:
áno
Celková plocha:
272.98 m2
Počet terás:
1
Počet garáží:
1
Vykurovanie - podlahové:
áno

Informatívna úverová kalkulačka

Pozrieť na mape

Radi Vám poradíme

Podobné nehnuteľnosti