Používame cookies

Súbory cookie a ďalšie technológie sledovania používame na zlepšenie vášho zážitku z prehliadania našich webových stránok, na to, aby sme vám zobrazovali prispôsobený obsah a cielené reklamy, na analýzu návštevnosti našich webových stránok a na pochopenie toho, odkiaľ naši návštevníci prichádzajú. Viac info

 

PREDAJ: HRUBÁ STAVBA 2 PODLAŽNÉHO RD

Interné ID: 12593079
Ulica: Streženice
Obec: Ilava
Okres: Ilava
Kraj: Trenčiansky kraj
Druh: Domy
Typ: Predaj
Typ domu: Rodinný dom
Iné:
1 €
Cena hrubej stavby s pozemkom a prístupovou cestou

Popis nehnuteľnosti

Realitná kancelária REG4U Vám ponúka na PREDAJ hrubú stavbu dvojpodlažného domu v tichej, rezidenčnej lokalite -  JELENIA LÚKA v obci Streženice, okres Púchov. V súkromnom, oplotenom, rozľahlom, rekreačnom areáli, výstavba ktorého už prebieha sa bude nachádzať 7 domov, ktoré svojím nadštandardným vyhotovením a umiestnením v sebe spájajú možnosti rekreácie, chalupárčenia aj záhradkárčenia s možnosťou celoročného bývania.

Ponuku nájdete na stránke: realestategroup4u.sk, ID: 12593087

Video obhliadka tu: https://youtu.be/tYNX8mImjME

PARAMETRE HRUBEJ STAVBY A POZEMKU:

  • výmera pozemku 367 m2
  • vonkajšie rozmery domu: 8 m x 5 m 
  • obytné miestnosti: 3
  • zastavaná plocha:  55 m2 vrátane terasy
  • úžitková plocha: 64,47 m2
  • závetrie: 4,80 m2
  • veľkosť terasy: 10 m2 
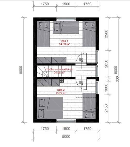
  • výmery vnútorných miestností – viď pôdorys v inzercii

HRUBÁ STAVBA OBSAHUJE: 

  • vytýčenie geodetom
  • založenie stavby – základy vrátane výstuže, ležatej kanalizácie, uzemnenia stavby, hydroizolácie
  • prípojky vody, elektriky a internetu privedené k pozemku
  • murivo – obvodové nosné murivo - tvárnice YTONG
  • nenosné murivo – tvárnice YTONG, preklady, vencový systém, stropná doska železobetónová
  • strecha – drevený tesársky krov, krytina lakoplastový falcovaný plech, klampiarske prvky

HRUBÚ STAVBU JE MOŽNÉ PO DOHODE DOKONČIŤ DO ŠTÁDIA HOLODOMU.

HOLODOM obsahuje: okenný systém - plastový - trojsklo, 6 komorové; elektroinštalácia (Legrand Valena Life) vrátane bleskozvodu; rozvodová poistná skrinka; príprava pre dátové napojenie stavby - wifi; realizácia dátových rozvodov za príplatok; vodovodné a kanalizačné rozvody; napojenie na teplú a studenú vodu; záhradný nemrznúci ventil CHELL POLAR II v exteriéri; žumpa 10 m3; podlaha - celoplošná hydroizolácia, tepelná izolácia 100mm; cementový poter; povrchová silikónová fasádna úprava vrátane zateplenia EPS 100 mm; stropný SDK systém; stropná izolácia minerálna ISOVER 350 mm; povrchová úprava interiéru - penetrácia + náter; komínové teleso; bukové schodisko s podestou ako súčasť interiérových nábytkových prvkov; uvedenie stavby do prevádzky.


VÝHODY PONUKY:

  • rovinatý, slnečný pozemok s výhľadmi na okolitú prírodu
  • podiel na spoločnej prístupovej ceste
  • útulný, presvetlený obytný priestor s výbornou dispozíciou 
  • príjemná, romantická klíma zabezpečená zdravým, sálavým teplom z krbu
  • z obývacej izby výstup na terasu
  • napojenie na obecný vodovod
  • parkovacie miesto pre 2 autá ku každému domčeku  
  • zabezpečená aj parkovacia politika pre návštevy rezidentov - externé parkovacie miesta v areáli
  • oplotený pozemok rezidencie so vstupnou hlavnou bránou 
  • v okolí domu je dostatočný priestor na vytvorenie relax zóny ako aj na záhradkárske, pestovateľské účely na kvalitnej, úrodnej pôde, ktorou lokalita disponuje 

VÝHODY LOKALITY:

  • rezort osadený do nádhernej prírody, na samote v blízkosti lesa 
  • bezproblémová dostupnosť do centra obce autom, na bicykli...
  • v okolí cyklotrasy, kúpaliská, historické pamiatky
  • výjazd na diaľnicu D1 cca 10 km

Projekt JELENIA LÚKA je osadený v prekrásnom prostredí v obci Streženice, ktorá leží na styku Ilavského podolia s Bielymi Karpatami pri ústí Bielej vody do Váhu. V obci sa nachádzajú 2 pramene minerálnej vody - kyselky a kompletná občianska vybavenosť - škôlka, škola, maloobchodné prevádzky, knižnica, kultúrne centrum, športovisko, zastávka SAD.

Cena HRUBEJ STAVBY vrátane pozemku a prístupovej cesty:  info v RK

Výstavba projektu už prebieha, viď fotogaléria. Tešíme sa na obhliadku s Vami.


V REG4U vybavíme za Vás:

  • hypotéku a právne služby
  • kataster
  • inžinierske siete
  • koordináciu projektu a výstavby 
  • kolaudáciu
  • služby interiérového dizajnéra

Call centrum: 0911 175 510

Vlastnosti

Status:
aktívne
Vlastníctvo:
osobné
Stav:
novostavba
Celková plocha:
104.8 m2
Úžitková plocha:
64.47 m2
Plocha pozemku:
367 m2
Zastavaná plocha:
91.45 m2
Počet podlaží:
2
Počet izieb:
3
Kúpeľňa:
áno
Počet kúpeľní:
1
Energetický certifikát:
A
El. napätie:
230V
Parkovanie:
vlastné vyhradené
Voda:
verejný vodovod
Inžinierske siete:
áno
Vykurovanie:
vlastné - elektrické

Informatívna úverová kalkulačka

Pozrieť na mape

Maklér

 

  "Vaša nehnuteľnosť si zaslúži profesionálny prístup a bezpečnú cestu k novému majiteľovi."

 V dynamickom svete realít sa orientujem s dôrazom na čestnosť, odbornosť a ľudský prístup. Moja práca v Real Estate Group4U nie je len o sprostredkovaní predaja či kúpy, ale o hľadaní najlepšieho riešenia pre každého klienta. Verím, že každá nehnuteľnosť má svoj príbeh a mojou úlohou je postarať sa o to, aby jeho ďalšia kapitola začala hladko a bez zbytočných starostí. Svojim klientom ponúkam nielen svoje skúsenosti, ale aj zázemie silnej spoločnosti, ktorá pod jednou strechou spája realitné služby, výstavbu domov, právnu istotu a odbornú pomoc pri financovaní. 

V čom vám viem pomôcť:

  • profesionálny predaj a prenájom - efektívna prezentácia vašej nehnuteľnosti s cieľom dosiahnuť najlepšiu trhovú cenu
  • bezpečný nákup - aktívne vyhľadávanie nehnuteľností podľa vašich špecifických požiadaviek a overenie ich stavu
  • kompletný servis - koordinácia celého procesu projektu v spolupráci s naším tímom expertov na inžiniering, výstavbu a financie

 Moja priorita je jasná - bezpečná transakcia, maximálna transparentnosť a spokojnosť na oboch stranách.

Radi Vám poradíme

Podobné nehnuteľnosti