Používame cookies

Súbory cookie a ďalšie technológie sledovania používame na zlepšenie vášho zážitku z prehliadania našich webových stránok, na to, aby sme vám zobrazovali prispôsobený obsah a cielené reklamy, na analýzu návštevnosti našich webových stránok a na pochopenie toho, odkiaľ naši návštevníci prichádzajú. Viac info

 

MODERNÝ 4 IZBOVÝ BUNGALOV 138 990,-€

Interné ID: 12788562
Obec: Trnava
Okres: Trnava
Kraj: Trnavský kraj
Druh: Domy
Typ: Predaj
Typ domu: Rodinný dom
Iné:
138 990 €
cena na kľúč v prevedení štandard aj s terasou

Popis nehnuteľnosti

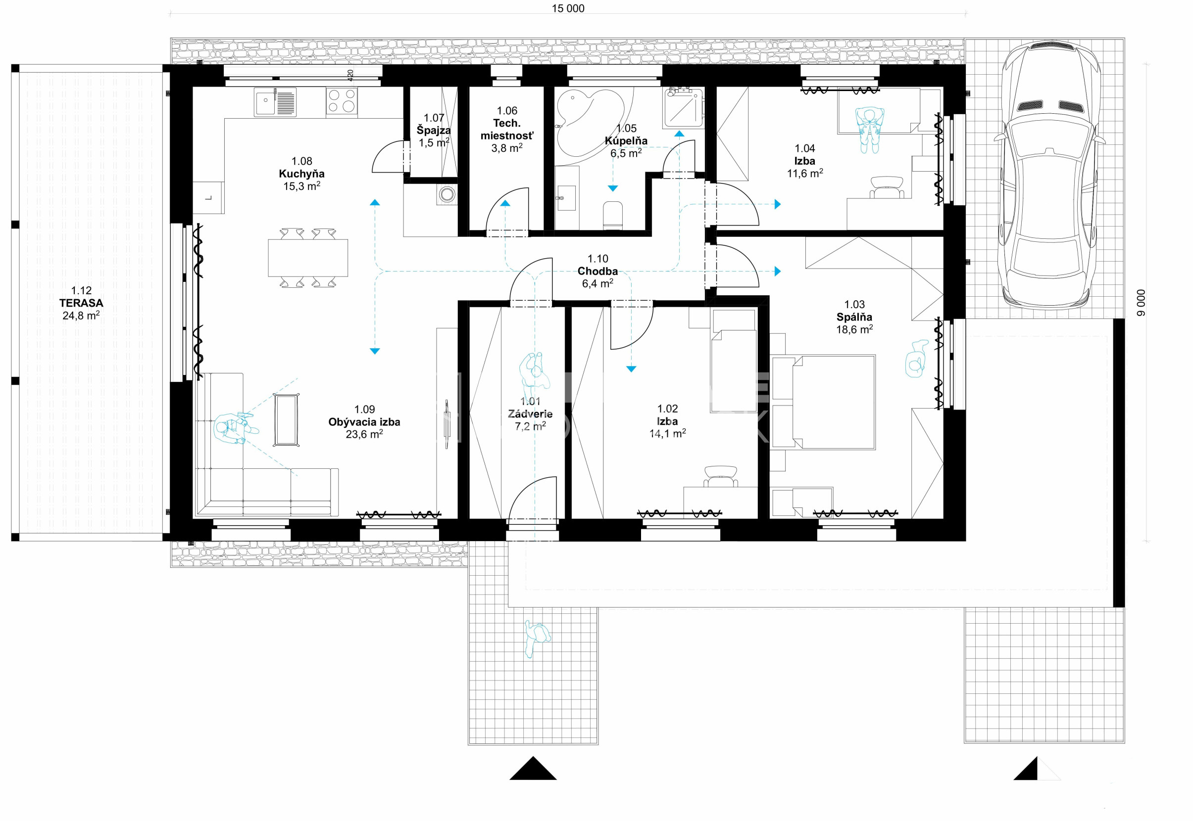
Realitná kancelária REG4U Vám ponúka na pozemku v okolí Trnavy VÝSTAVBU RODINNÉHO DOMU - 4 izbový bungalov typ NKSQ 05  je projekt strednej veľkostnej kategórie. Veľkoformátové posuvné dvere prepájajú interiér s exteriérom, čo opticky zväčšuje priestor a prináša dostatok prirodzeného svetla. Štýlové prestrešenie terasy umožňuje vonkajšie stolovanie za každého počasia.

  • úžitková plocha: 107 m2
  • zastavaná plocha: 152 m2
  • rozmery domu: 15 m x 9 m 
  • obytné miestnosti: 4
  • minimálne rozmery pozemku: 22 × 16 m

Ponuku nájdete na stránke: realestategroup4u.sk, ID: 12788562

Ceny RD v 3 variantoch možnej výstavby:
HRUBÁ STAVBA: 63 140,-€
HOLODOM PLUS: 124 820,-€
NA KĽÚČ v prevedení ŠTANDARD vrátane terasy: 138 990,-€

CENA DOMU NEZAHŔŇA PRÍPOJKY INŽINIERSKÝCH SIETÍ A POZEMOK. VIAC INFO O POZEMKU V RK.  


Výhody ponuky:

  • katalógový projekt
  • energetický certifikát v triede A0, mesačné náklady na vykurovanie do 110,-€ mesačne 
  • možnosť vyhotovenia domu: nízkoenergetický, pasívny, nulový
  • realizácia voliteľných súčastí stavby – napr. alarm, kamerový systém, rekuperácia, krbový systém
  • certifikát kvality stavby
  • záručný a pozáručný servis

Zhotovenie stavby:

  •  tehla, Ytong, betónový monolit

 Predpokladaný termín dokončenia hrubej stavby v závislosti od zvolených materiálov už do 1 mesiaca.

V projekte je možnosť bezplatných, malých úprav v dispozičnom riešení interiéru stavby v rámci projektových možností.


V REG4U vybavíme za Vás:

  • finančné a právne služby
  • stavebné a územné konanie
  • inžinierske siete
  • dotáciu na tepelné čerpadlo, fotovoltiku
  • kolaudáciu
  • služby interiérového dizajnéra

Ponuku nájdete na našej web stránke v kategórii Domy na kľúč: https://www.realestategroup4u.sk/domy-na-kluc 

Call centrum: 0911 175 510

Vlastnosti

Status:
aktívne
Vlastníctvo:
osobné
Stav:
novostavba
Celková plocha:
152 m2
Úžitková plocha:
107 m2
Zastavaná plocha:
152 m2
Počet izieb:
4
Kúpeľňa:
áno
Počet kúpeľní:
1
Energetický certifikát:
A
Terasa:
áno

Informatívna úverová kalkulačka

Pozrieť na mape

Maklér

Alena Večerková

Alena Večerková

call centrum / klientská podpora

  • narks

 

 „Váš prvý kontakt s profesionálnym svetom realít začína tu.“

   Som prvým hlasom, ktorý v REG4U počujete, a mojím poslaním je zabezpečiť, aby sa vaša požiadavka dostala do správnych rúk. Starám sa o to, aby naša komunikácia s klientmi bola plynulá, rýchla a efektívna. Či už potrebujete informácie o konkrétnej nehnuteľnosti, alebo máte otázky k našim službám výstavby, som tu, aby som vám poskytla potrebnú podporu a nasmerovala vás k našim špecialistom.“

Moja špecializácia:

  • koordinácia klientskych dopytov a prvotná konzultácia
  • zákaznícka podpora a servis
  • správa termínov a informovanosť o portfóliu služieb

Radi Vám poradíme

Podobné nehnuteľnosti