Používame cookies

Súbory cookie a ďalšie technológie sledovania používame na zlepšenie vášho zážitku z prehliadania našich webových stránok, na to, aby sme vám zobrazovali prispôsobený obsah a cielené reklamy, na analýzu návštevnosti našich webových stránok a na pochopenie toho, odkiaľ naši návštevníci prichádzajú. Viac info

 

OKAMŽITÁ VÝSTAVBA - 4 IZ HOLODOM S POZEMKOM - BELUŠA

Interné ID: 12823480
Ulica: Podhorie
Obec: Beluša
Okres: Púchov
Kraj: Trenčiansky kraj
Druh: Domy
Typ: Predaj
Typ domu: Rodinný dom
Iné:
179 900 €
Pozemok s holodomom

Popis nehnuteľnosti

Realitná kancelária REG4U Vám ponúka na PREDAJ  pozemok s výstavbou rodinného domu do štádia HOLODOM v obci BELUŠA, časť Podhorie v novej štvrti rodinných domov.

VÝHODY PONUKY:

  • rovinatý, slnečný pozemok o výmere 600 m2
  • v zastavanom území obce
  • právoplatné stavebné povolenie - možnosť okamžitej výstavby
  • šírka pozemku 32 m  poskytuje veľa možností na umiestnenie domu aj príslušenstva (auto-prístrešok, garáž, dielňa, záhrada)
  • podiel na prístupovej ceste
  • koncová parcela, bez rušivých vplyvov
  • rýchla dostupnosť na D1
  • do centra obce Beluša 5 minút, mesta Púchov 15 minút autom
  • v obci výborná občianska vybavenosť (škola, škôlka, autobusová zástavka, potraviny, zdravotné stredisko, lekáreň, očná optika, ihriská, ďalšie maloobchodné prevádzky a služby)

PARAMETRE DOMU:

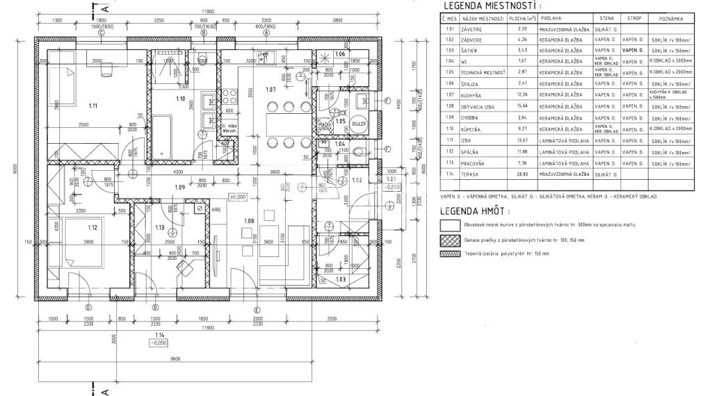
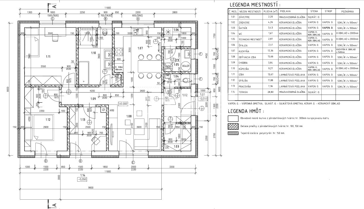
  • Zastavaná plocha cca: 107 m2
  • Úžitková plocha: 95 m2
  • Vonkajšie rozmery domu: 11,8 x 9m
  • terasa 28,8 m2
  • Počet miestností: 4
  • Veľkosť terasy podľa požiadaviek budúceho vlastníka (naceňuje sa osobitne)

Dom s praktickým, funkčným obytného priestoru a dostatkom úložného priestoru pozostáva zo vstupnej chodby so šatníkom a samostatnou toaletou, z dennej časti, ktorý tvorí obývacia miestnosť so vstupom na vonkajšiu terasu a kuchyňa, kúpeľne s WC a technickej miestnosti a  nočnej časti – spálne a 2 samostatných izieb.

Dom v štádiu HOLODOM obsahuje:

  • YTONG 300 mm+ zateplenie polystyrén 150 mm
  • vonkajšia omietka (možnosť výberu farby)
  • betónová krytina Terran DANUBIA Evo Carbon vrátane doplnkov
  • okná plastové 7-komorové, 3-sklo (možnosť výberu farby)
  • podlahové elektrické vykurovanie s ovládaním cez BLUETOOTH (teplovodné s kotlom alebo tepelným čerpadlom za doplatok)
  • kompletné vnútorné rozvody: voda odpad, elektrika, vykurovanie
  • kompletné vnútorné omietky (štuk alebo sadra)
  • podlahy cementové alebo anhydrid
  • zateplenie stropu (minerálna vata 40cm) a sadrokartón s prípravou pre osvetlenie  komín a príprava pre montáž krbu
  • pripravené na maľovanie a obkladanie podľa vlastných predstáv
  • elektrická prípojka s hodinami
  • napojenie na studňu a žumpu

Cena pozemku s rodinným domom v štádiu HOLODOM: 179 900.-€. 

Možnosť dokončenia do štádia na kľúč  - podľa aktuálnej cenovej ponuky

V REG4U vybavíme za Vás: 

  • hypotéku a právne služby
  • kataster
  • inžinierske siete
  • koordináciu projektu a výstavby 
  • stavebné povolenie
  • kolaudáciu
  • služby interiérového dizajnéra

Ponuku nájdete na stránke: realestategroup4u.sk, ID 12823480

Call centrum: 0911 175 510

Vlastnosti

Status:
aktívne
Vlastníctvo:
osobné
Plocha pozemku:
600 m2
Typ zeme:
rovina
Šírka pozemku:
32 m
Úžitková plocha:
95 m2
Zastavaná plocha:
107 m2
Stav:
Vo fáze projektovania
Počet izieb:
4
Typ výbavy:
holopriestor
Terasa:
áno
Celková plocha:
600 m2
Terasa plocha:
28.8 m2
Počet terás:
1
Orientácia:
juhovýchod
Vykurovanie - podlahové:
áno

Informatívna úverová kalkulačka

Pozrieť na mape

Maklér

 

  S myšlienkou stať sa realitnou maklérkou som sa pohrávala už dlhšiu dobu. Preto, keď prišla ponuka pôsobiť v tíme Real Estate Group4U, neváhala som ju využiť. Dnes môžem povedať, že to bolo dobré rozhodnutie. 

  K uskutočneniu mojej vízie ma priviedla najmä snaha uplatniť svoje dlhoročné skúsenosti v práci s ľuďmi. Motivuje ma hlavne možnosť dosiahnuť spokojnosť pri uplatňovaní ich potrieb. Vždy sa riadim rovnakými princípmi - etickým kódexom a overenými pracovnými postupmi. Svoju profesionalitu a odbornosť zdokonaľujem pravidelným vzdelávaním sa. Naviac, je príjemné pracovať v tíme so špecialistami, na ktorých sa môžem obrátiť. Vždy vieme spoločne poskytnúť kreatívny a profesionálny prístup, nech už sú požiadavky našich klientov akékoľvek náročné.

  Som rada, že aj ja, môžem svojou prácou prispievať k zvýšeniu dôvery a prestíže profesie realitného makléra a realitnej kancelárie ako takej.   

                                     „Všetko je spojené so všetkým“

Radi Vám poradíme

Podobné nehnuteľnosti