Používame cookies

Súbory cookie a ďalšie technológie sledovania používame na zlepšenie vášho zážitku z prehliadania našich webových stránok, na to, aby sme vám zobrazovali prispôsobený obsah a cielené reklamy, na analýzu návštevnosti našich webových stránok a na pochopenie toho, odkiaľ naši návštevníci prichádzajú. Viac info

 

POZEMOK SO 4-IZBOVÝM BUNGALOVOM S ATYPICKÝMI PRVKAMI

Interné ID: 12823644
Ulica: Keblie
Obec: Púchov
Okres: Púchov
Kraj: Trenčiansky kraj
Druh: Domy
Typ: Predaj
Typ domu: Rodinný dom
Iné:
230 000 €
cena holodomu s pozemkom

Popis nehnuteľnosti

Realitná kancelária REG4U Vám ponúka pozemok v obci Streženice, osada Keblie, v prekrásnom prostredí, do ktorého zapadne aj takýto atypický 4-izbový bungalov s drevenými prvkami a peknou dispozíciou. Dom má parametre:

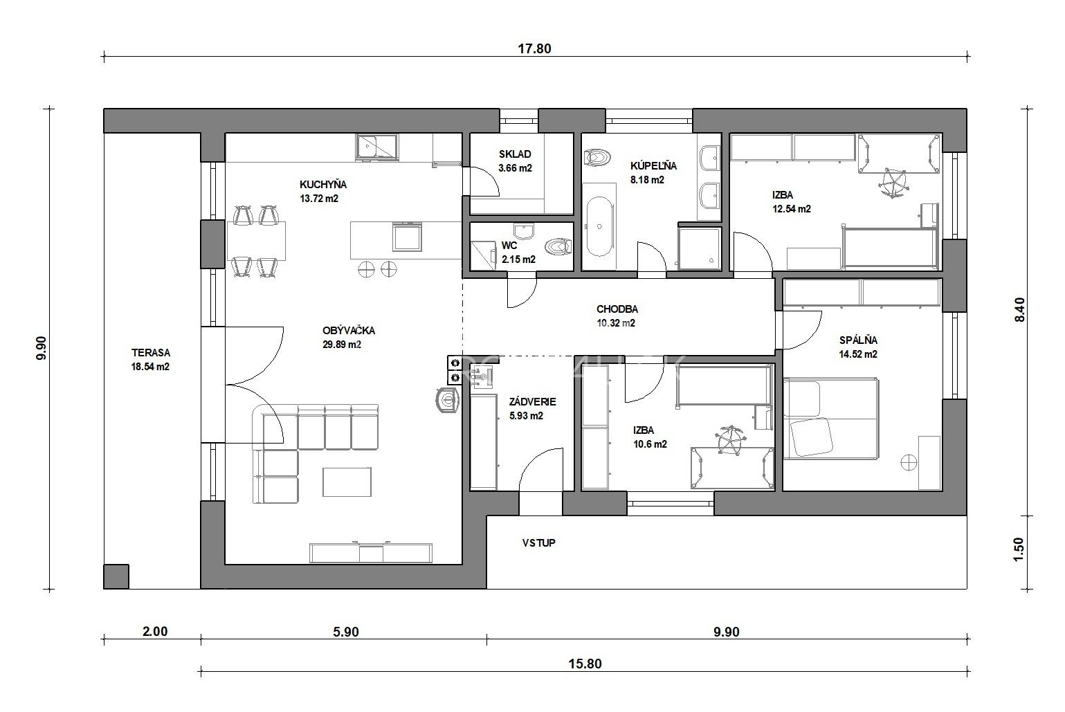
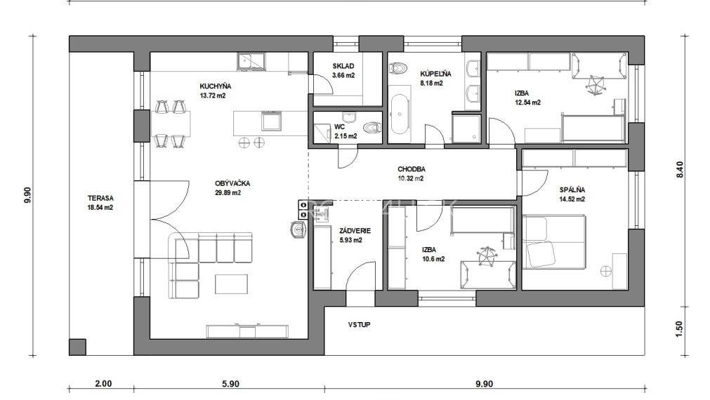
  • zastavaná plocha:    161,37 m2
  • úžitková plocha:      111,51 m2
  • rozmery domu:        9,9 x 17,8  m
  • obytné miestnosti:   4

Ponuku nájdete na stránke: realestategroup4u.sk ID 12823644

video prehliadka tu: https://youtu.be/vCVfT7UU7pg

VÝHODY PROJEKTU:

  • katalógový projekt – výhodná cena
  • použité kvalitné materiály
  • rýchlosť výstavby
  • energetický certifikát v triede A0, mesačné náklady na vykurovanie do 100,-€/mesiac
  • záručný a pozáručný servis

ZHOTOVENIE STAVBY:

  • murovaná - tehla, Ytong 
  • montovaná

V projekte je možnosť bezplatných, malých úprav v dispozičnom riešení interiéru stavby v rámci projektových možností.

Cena RD v 2 variantoch možnej výstavby vrátane DPH:

HOLODOM: 134 000.-€

DOM NA KĽÚČ: 142 000.-€

*cena domu a zastavaná plocha je vrátane prestrešených častí 18,54 m2 a 15m2 a vo vyhotovení montovaný

Predpokladaný termín dokončenia hrubej stavby v závislosti od zvolených materiálov už do 1 mesiacov.

V projekte je možnosť bezplatných, malých úprav v dispozičnom riešení interiéru stavby v rámci projektových možností.


Pozemok, na ktorom bude postavený dom sa nachádza v prekrásnom prostredí Bielych Karpát v obci Streženice, v osade Keblie, okres Púchov:

VÝHODY PONUKY:

  • slnečný, mierne svahovitý pozemok s výmerou 1100 m2 
  • v zastavanom území obce - určený pre individuálnu bytovú výstavbu
  • šírka pozemku 40 m od prístupovej komunikácie 
  • benefit - pozemok napojený na elektrinu a obecnú vodu
  • pozemok je možné využiť na výstavbu domu s celoročným využitím, príp. na výstavbu rekreačného domu
  • veľkosť pozemku ponúka možnosti na vybudovanie okrasnej i úžitkovej záhrady, detskej i relax zóny 
  • krásne výhľady na dolinu a okolitú prírodu 
  • vzdialenosť do centra obce Streženice a mesta Púchov 1 km
  • napojenie na D1 do 2 km 

OBEC Streženie - má dobrú občiansku vybavenosť  - materskú školu, 1 stupeň základnej školy, maloobchodné prevádzky a služby, nad obcou sa týči  turisticky vyhľadávané miesto Štepnická skala

Cena pozemku: 88.-€ /m2

Na pozemku je možnosť postaviť aj dom podľa vašich predstáv, inšpirovať sa môžete našimi katalógovými projektmi na stránke: realestategroup4u.sk v kategórii Domy na kľúč.

CENA HOLODOMU S POZEMKOM: 230 000.-€

S financovaním kúpy pozemku, prípadne s postupnou výstavbou domu cez hypotéku vám radi pomôžeme.


V REG4U vybavíme za Vás:

  • hypotéku a právne služby
  • kataster
  • inžinierske siete
  • koordináciu projektu a výstavby 
  • stavebné povolenie
  • kolaudáciu
  • služby interiérového dizajnéra

Call centrum: 0911 175 510

Vlastnosti

Status:
aktívne
Vlastníctvo:
osobné
Plocha pozemku:
1110 m2
Typ zeme:
mierne svahovitá
Úžitková plocha:
111.51 m2
Zastavaná plocha:
161.37 m2
Stav:
novostavba
Počet izieb:
4
Energetický certifikát:
A
Energetická náročnosť budovy:
Nízkoenergetický
Terasa:
áno
Celková plocha:
161.37 m2
Počet terás:
1
Orientácia:
juhozápad
Inžinierske siete:
áno
Voda:
áno
Elektrika:
áno
Kanalizácia:
áno
Voda - na pozemku:
áno
Elektrika - na pozemku:
áno
Kanalizácia - na pozemku - žumpa:
áno
Vykurovanie - podlahové:
áno

Informatívna úverová kalkulačka

Pozrieť na mape

Maklér

 

  S myšlienkou stať sa realitnou maklérkou som sa pohrávala už dlhšiu dobu. Preto, keď prišla ponuka pôsobiť v tíme Real Estate Group4U, neváhala som ju využiť. Dnes môžem povedať, že to bolo dobré rozhodnutie. 

  K uskutočneniu mojej vízie ma priviedla najmä snaha uplatniť svoje dlhoročné skúsenosti v práci s ľuďmi. Motivuje ma hlavne možnosť dosiahnuť spokojnosť pri uplatňovaní ich potrieb. Vždy sa riadim rovnakými princípmi - etickým kódexom a overenými pracovnými postupmi. Svoju profesionalitu a odbornosť zdokonaľujem pravidelným vzdelávaním sa. Naviac, je príjemné pracovať v tíme so špecialistami, na ktorých sa môžem obrátiť. Vždy vieme spoločne poskytnúť kreatívny a profesionálny prístup, nech už sú požiadavky našich klientov akékoľvek náročné.

  Som rada, že aj ja, môžem svojou prácou prispievať k zvýšeniu dôvery a prestíže profesie realitného makléra a realitnej kancelárie ako takej.   

                                     „Všetko je spojené so všetkým“

Radi Vám poradíme

Podobné nehnuteľnosti