Používame cookies

Súbory cookie a ďalšie technológie sledovania používame na zlepšenie vášho zážitku z prehliadania našich webových stránok, na to, aby sme vám zobrazovali prispôsobený obsah a cielené reklamy, na analýzu návštevnosti našich webových stránok a na pochopenie toho, odkiaľ naši návštevníci prichádzajú. Viac info

 

LUXUSNÝ BUNGALOVU NA KĽÚČ S POZEMKOM - LIETAVSKÁ SVINNÁ

Interné ID: 12823725
Ulica: LIETAVSKÁ SVINNÁ
Obec: Lietavská Svinná-Babkov
Okres: Žilina
Kraj: Žilinský kraj
Druh: Domy
Typ: Predaj
Typ domu: Rodinný dom
Iné:
238 900 €
Cena domu na kľúč spolu s pozemkom

Popis nehnuteľnosti

Realitná kancelária REG4U Vám ponúka na PREDAJ 4-izbový luxusný bungalov, ktorý je navrhnutý na pozemku vo výmere 988 m2 vo vyhľadávanej lokalite LIETAVSKÁ SVINNÁ.

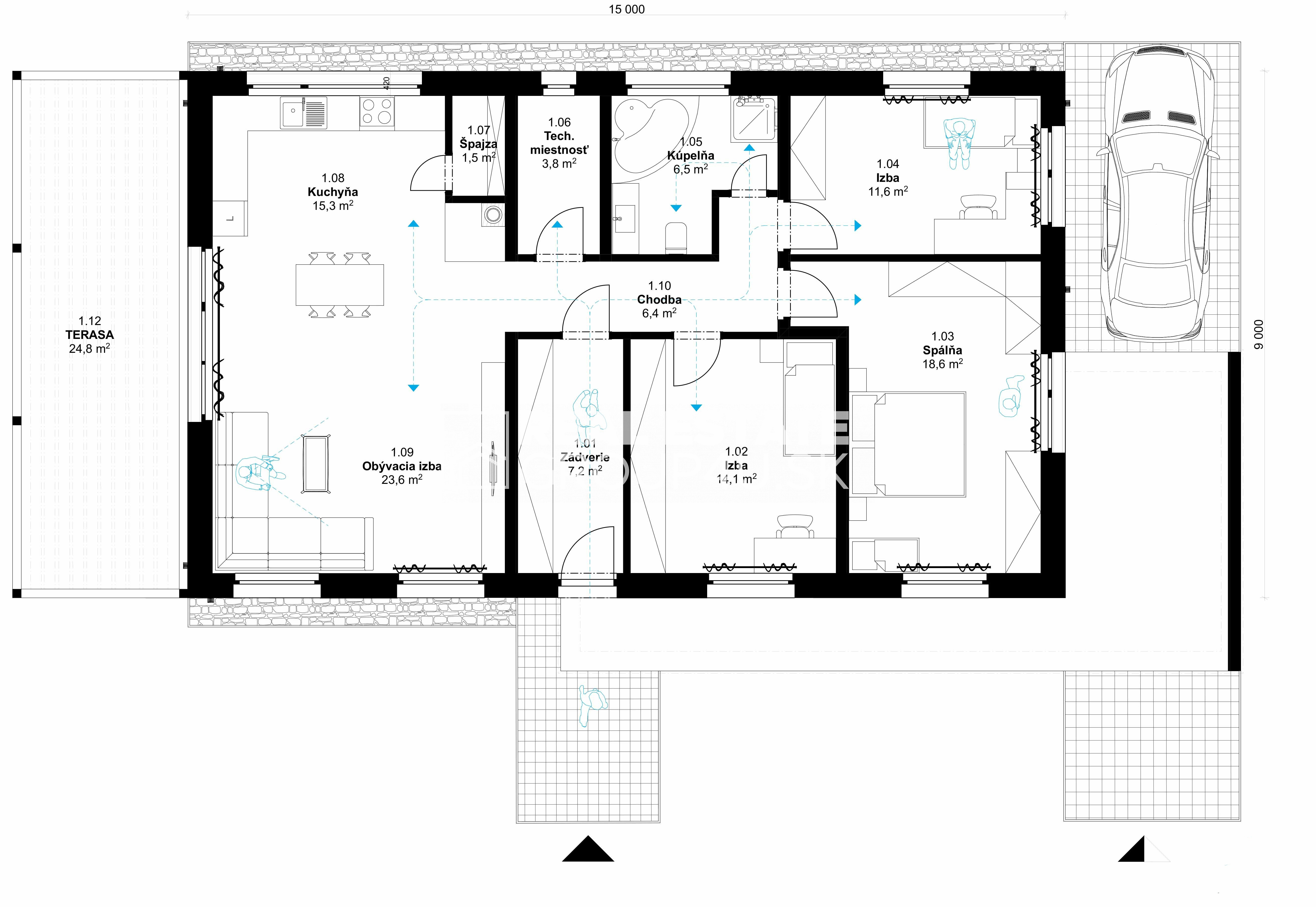
Luxusný bungalov patrí do strednej veľkostnej kategórie. Vnútornými priestormi uspokojí nároky na bývanie 4-5 člennej rodiny. Bungalov predstavuje nadčasový rodinný dom, ktorý sa pýši úžitkovou plochou až 102 m2. Tento bungalov je vďaka tomu dostatočne veľký a svoje súkromie si v ňom nájde každý člen rodiny.

Bungalov je navrhnutý na lukratívnom pozemku so schváleným územným rozhodnutím, v tichej a bezpečnej lokalite, ktorá spĺňa požiadavky súčasného moderného bývania a je ideálny na výstavbu bungalovu, čo poskytuje budúcim majiteľom pocit pokoja a súkromia.

Na hranici pozemku sa nachádzajú inžinierske siete - elektrika, plyn, vodovod.
Prístup na pozemok po obecnej asfaltovej ceste.

Strategická poloha pozemku Vám zaručí
IDEÁLNE BÝVANIE PRE NÁROČNÉHO záujemcu. Pozemok má vynikajúcu dispozíciu do centra mesta Žilina je doslova na skok iba 12 km - autom bez dopravných obmedzení. Pozemok je možné predať aj samostatne. Informácie Vám radi podáme v realitnej kancelárii.

Ponuku nájdete na stránke: realestategroup4u.sk, ID: 12823725

VÝHODY PONUKY
•      Lukratívna lokalita LIETAVSKÁ SVINNÁ vyhľadávaná oblasť
•      Výmera pozemku 988 m2 ideálna pre výstavbu RD
•      Luxusný priestranný rodinný dom pre Vašu rodinu
•      Dostatočná výmera na výstavbu RD, záhradu – úžitkovú aj okrasnú či relax zónu
•      Pozemok je výborne orientovaný a celý deň slnečný
•      Pohodlný prístup k pozemku po obecnej asfaltovej ceste
•      Výborná dostupnosť do mesta Žilina autom 12 km bez dopravných obmedzení
•      Skvelá investícia do vlastného rodinného domu
•      Na hranici pozemku IS - elektrika, plyn, vodovod
•      Tichá a bezpečná lokalita

Ponúkame možnosť výstavby katalógového alebo individuálneho projektu RD


PARAMETRE BUNGALOVU
•      úžitková plocha: 107 m2
•      zastavaná plocha bez terasy: 152 m2
•      rozmery domu: 15 m x 9 m
•      obytné miestnosti: 4

Ceny RD v 2 variantoch možnej výstavby
•      HOLODOM
•      NA KĽÚČ ŠTANDARD aj vrátane terasy


CENA DOMU NA KĽÚČ SPOLU S POZEMKOM 238 900,- €
CENA NEZAHŔŇA PRÍPOJKY INŽINIERSKÝCH SIETÍ

Ak Vám nevyhovuje naša ponuka navrhovaného moderného bungalovu a máte inú predstavu a požiadavky o Vašom dome, môžete si vybrať z našej ponuky rodinných domov. Bližšie informácie Vám radi poskytneme v našej realitnej kancelárii.

Ponuka projektov rodinných domov: https://www.realestategroup4u.sk/domy-na-kluc

V projekte je možnosť bezplatných, malých úprav v dispozičnom riešení interiéru stavby v rámci projektových možností.

Predpokladaný termín dokončenia hrubej stavby v závislosti od zvolených materiálov už do 1 mesiaca.

VÝHODY PROJEKTU
•      katalógový projekt
•      energetický certifikát v triede A0
•      mesačné náklady na vykurovanie do 140,-€/mesiac
•      možnosť vyhotovenia domu: nízkoenergetický, pasívny, nulový
•      realizácia voliteľných súčastí stavby – napr. alarm, kamerový systém, rekuperácia, krb a pod.
•      certifikát kvality stavby
•      záručný a pozáručný servis


ZHOTOVENIE STAVBY
•      murovaná - tehla, Ytong
•      betónový monolit

S financovaním kúpy pozemku a s postupnou výstavbou domu cez hypotéku Vám radi pomôžeme.


V REG4U VYBAVÍME ZA VÁS
•      hypotéku a právne služby
•      kataster
•      inžinierske siete
•      koordináciu projektu a výstavby
•      komplet inžiniering k vybaveniu stavebného povolenia
•      kolaudáciu RD
•      služby interiérového dizajnéra

Call centrum: 0911 175 510

Vlastnosti

Status:
aktívne
Vlastníctvo:
osobné
Plocha pozemku:
988 m2
Úžitková plocha:
107 m2
Zastavaná plocha:
152 m2
Stav:
novostavba
Počet izieb:
4
Energetický certifikát:
A
Energetická náročnosť budovy:
Nízkoenergetický
Terasa:
áno
Celková plocha:
127.12 m2
Počet terás:
1
Inžinierske siete:
áno
Voda:
áno
Elektrika:
áno
Plyn:
áno
Voda - na pozemku:
áno
Elektrika - na pozemku:
áno
Plyn - na pozemku:
áno
Vykurovanie - podlahové:
áno

Informatívna úverová kalkulačka

Pozrieť na mape

Radi Vám poradíme

Podobné nehnuteľnosti