Používame cookies

Súbory cookie a ďalšie technológie sledovania používame na zlepšenie vášho zážitku z prehliadania našich webových stránok, na to, aby sme vám zobrazovali prispôsobený obsah a cielené reklamy, na analýzu návštevnosti našich webových stránok a na pochopenie toho, odkiaľ naši návštevníci prichádzajú. Viac info

 

BÝVANIE PRE NÁROČNÝCH - 5 izieb plných svetla

Interné ID: 12823761
Obec: Topoľčany
Okres: Topoľčany
Kraj: Nitriansky kraj
Druh: Domy
Typ: Predaj
Typ domu: Rodinný dom
Iné:
Cena v RK

Popis nehnuteľnosti

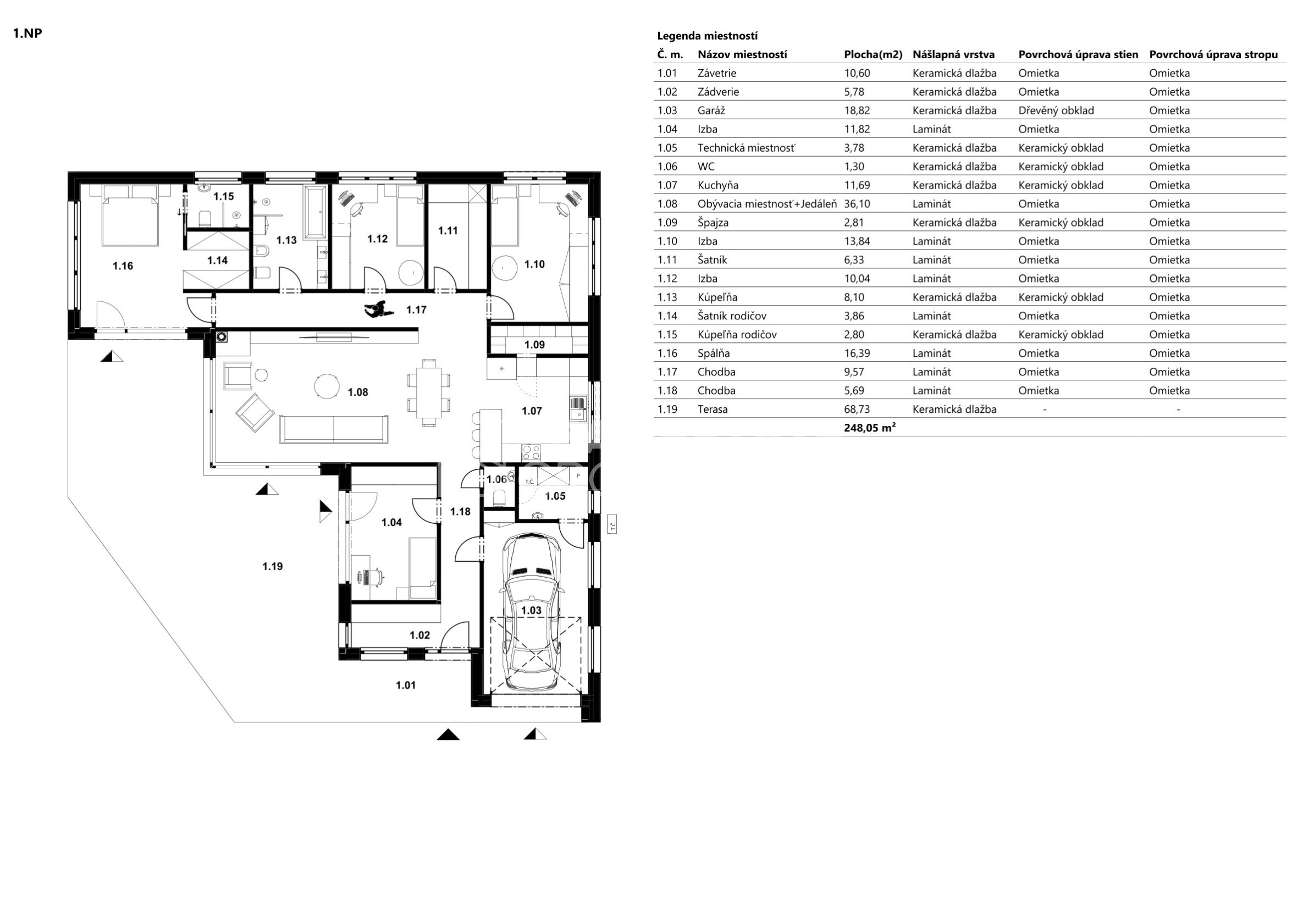
Realitná kancelária REG4U Vám ponúka na pozemku v okolí Topoľčian VÝSTAVBU RODINNÉHO DOMU - 5 izbového domu typ KK D. Elegantný jednopodlažný dom s čistými líniami a plochou strechou zaujme nadčasovým dizajnom. Veľké presklené plochy prepájajú interiér so záhradou a terasou, čím vytvárajú svetlý a vzdušný priestor. Dom je vhodný pre náročných klientov, ktorí hľadajú moderné, komfortné a funkčné bývanie s dôrazom na dizajn a kvalitu života.

BUNGALOV KK D parametre:

  • úžitková plocha: 248 m2
  • zastavaná plocha: 272,98 m2
  • rozmery domu: 17,10 m x 17,60 m 
  • obytné miestnosti: 5

Ponuku nájdete na stránke: realestategroup4u.sk, ID: 12823761

Výhody projektu na mieru:

  • individuálny projekt podľa vašich potrieb a štýlu
  • maximálne využitie pozemku
  • flexibilita v dispozičnom riešení
  • efektívnejšie energetické riešenia
  • energetický certifikát v triede A0
  • možnosť vyhotovenia domu: nízkoenergetický, pasívny, nulový
  • realizácia voliteľných súčastí stavby – napr. alarm, kamerový systém, rekuperácia, krbový systém
  • certifikát kvality stavby
  • záručný a pozáručný servis

Zhotovenie stavby:

  • betónový monolit

RD je možné zrealizovať v 3 variantoch možnej výstavby:

  • hrubá stavba
  • holodom
  • na kľúč

VIAC INFO O POZEMKU A CENE PROJEKTU NA MIERU V  RK.

V REG4U vybavíme za Vás:

  • hypotéku a právne služby
  • kataster
  • inžinierske siete
  • koordináciu projektu a výstavby 
  • stavebné povolenie
  • kolaudáciu
  • služby interiérového dizajnéra

Pre viac informácií kontaktujte: 0911 175 510

Vlastnosti

Status:
aktívne
Vlastníctvo:
osobné
Úžitková plocha:
248 m2
Zastavaná plocha:
272.98 m2
Stav:
novostavba
Počet izieb:
5
Energetický certifikát:
A
Energetická náročnosť budovy:
Nízkoenergetický
Terasa:
áno
Garáž:
áno
Celková plocha:
272.98 m2
Počet terás:
1
Počet garáží:
1
Vykurovanie - podlahové:
áno

Pozrieť na mape

Maklér

Alena Večerková

Alena Večerková

call centrum / klientská podpora

  • narks

 

 „Váš prvý kontakt s profesionálnym svetom realít začína tu.“

   Som prvým hlasom, ktorý v REG4U počujete, a mojím poslaním je zabezpečiť, aby sa vaša požiadavka dostala do správnych rúk. Starám sa o to, aby naša komunikácia s klientmi bola plynulá, rýchla a efektívna. Či už potrebujete informácie o konkrétnej nehnuteľnosti, alebo máte otázky k našim službám výstavby, som tu, aby som vám poskytla potrebnú podporu a nasmerovala vás k našim špecialistom.“

Moja špecializácia:

  • koordinácia klientskych dopytov a prvotná konzultácia
  • zákaznícka podpora a servis
  • správa termínov a informovanosť o portfóliu služieb

Radi Vám poradíme

Podobné nehnuteľnosti