Používame cookies

Súbory cookie a ďalšie technológie sledovania používame na zlepšenie vášho zážitku z prehliadania našich webových stránok, na to, aby sme vám zobrazovali prispôsobený obsah a cielené reklamy, na analýzu návštevnosti našich webových stránok a na pochopenie toho, odkiaľ naši návštevníci prichádzajú. Viac info

 

BUNGALOV S TERASOU - 4 IZBOVÝ, čistá architektúra

Interné ID: 12823863
Ulica: Bytča
Obec: Bytča
Okres: Bytča
Kraj: Žilinský kraj
Druh: Domy
Typ: Predaj
Typ domu: Rodinný dom
Typ pozemku: Pozemok pre rodinné domy
Iné:
147 100 €
cena na kľúč v prevedení štandard aj s terasou

Popis nehnuteľnosti

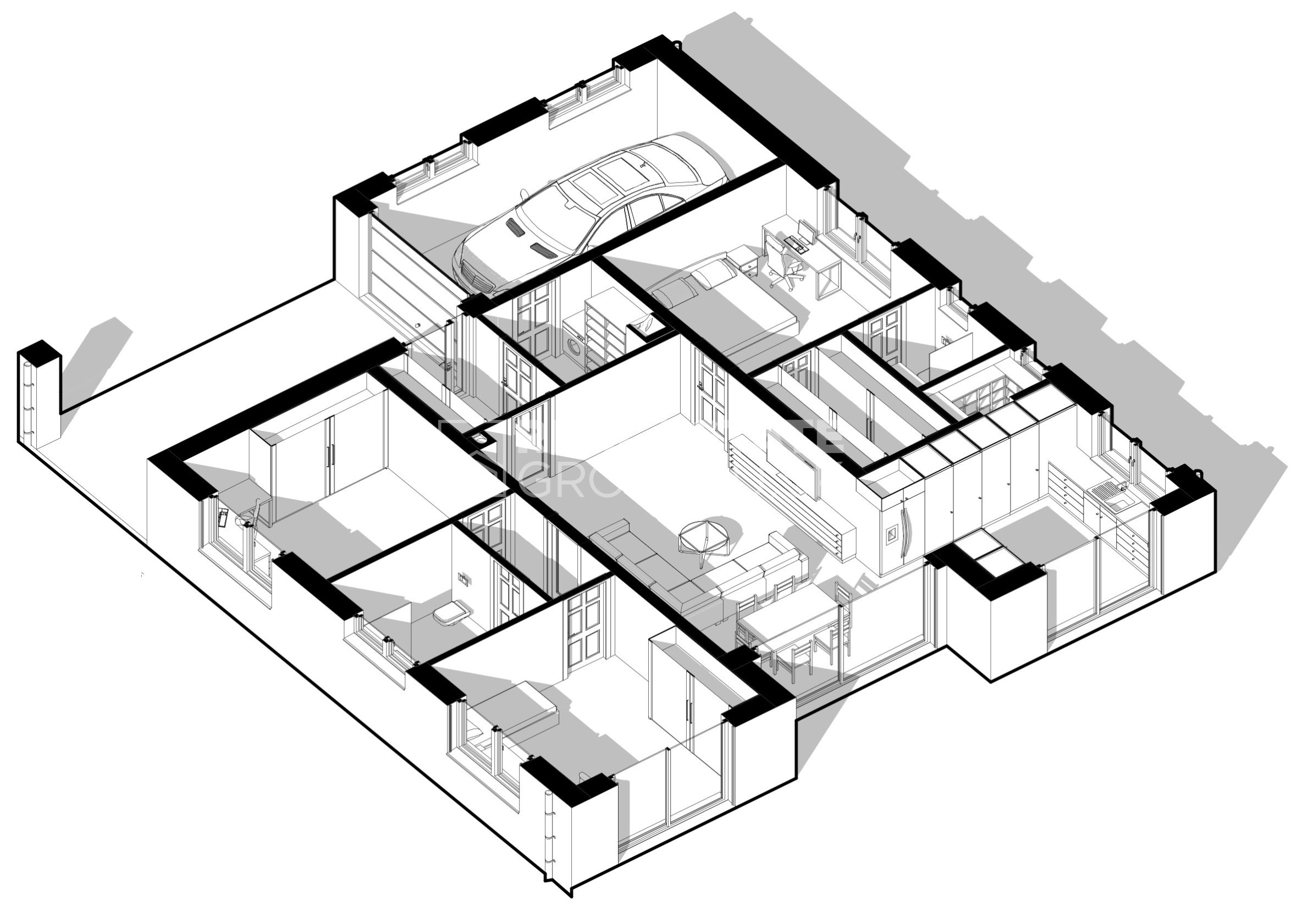
Realitná kancelária REG4U Vám ponúka na pozemku v okolí Bytče VÝSTAVBU RODINNÉHO DOMU - bungalov typ KKB 11 predstavuje nadčasový rodinný dom, ktorý zaujme čistou architektúrou, kvalitným prevedením a dôrazom na komfortné bývanie.

BUNGALOV KKB 11 parametre:

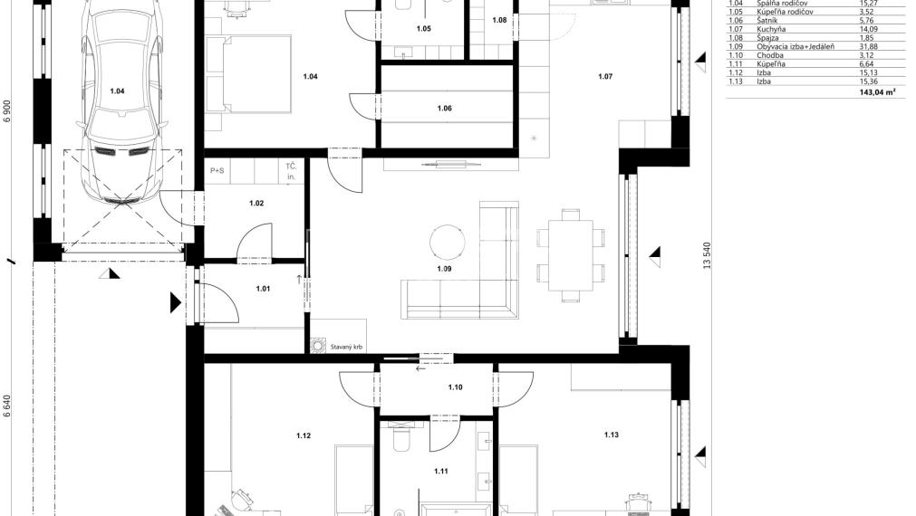
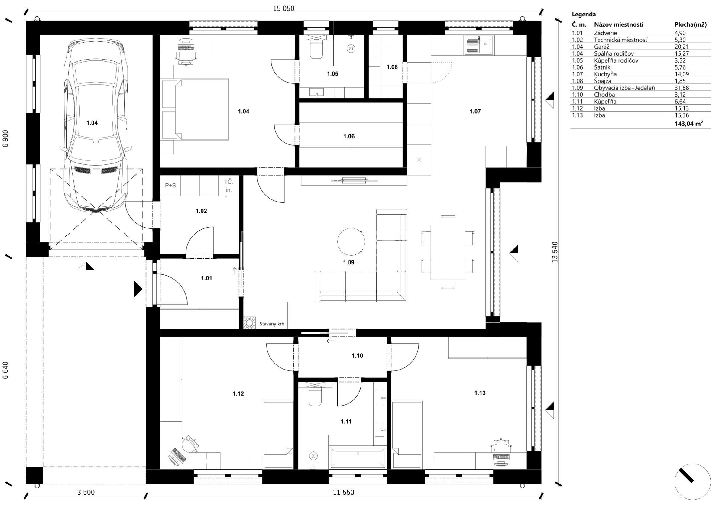
  • úžitková plocha:      122,83 m2
  • zastavaná plocha:   143,04 m2
  • rozmery domu:       15,05 x 13,54 m 
  • obytné miestnosti:  4

Ponuku nájdete na stránke: realestategroup4u.sk, ID: 12823863

Video prehliadka projektu: https://youtu.be/YuTjKlRp6FU

Výhody projektu:

  • katalógový projekt
  • energetický certifikát v triede A0, mesačné náklady na vykurovanie do 120,-€/mesiac 
  • možnosť vyhotovenia domu: nízkoenergetický, pasívny, nulový
  • realizácia voliteľných súčastí stavby – napr. alarm, kamerový systém, rekuperácia, krbový systém
  • certifikát kvality stavby
  • záručný a pozáručný servis

Zhotovenie stavby:

  • tehla, Ytong, betónový monolit

Predpokladaný termín dokončenia hrubej stavby v závislosti od zvolených materiálov už do 1 mesiaca.

V projekte je možnosť bezplatných, malých úprav v dispozičnom riešení interiéru stavby v rámci projektových možností.

Ceny RD v 3 variantoch možnej výstavby:

HRUBÁ STAVBA: 75 200,-€
HOLODOM PLUS: 132 100 ,-€
NA KĽÚČ v prevedení ŠTANDARD vrátane terasy: 147 100,-€

CENA DOMU NEZAHŔŇA PRÍPOJKY INŽINIERSKÝCH SIETÍ A POZEMOK. VIAC INFO O POZEMKU V RK.


V REG4U vybavíme za Vás:

  • hypotéku a právne služby
  • kataster
  • inžinierske siete
  • koordináciu projektu a výstavby 
  • stavebné povolenie
  • kolaudáciu
  • služby interiérového dizajnéra

Ponuku nájdete na našej web stránke v kategórii Domy na kľúč: https://www.realestategroup4u.sk/domy-na-kluc 

Pre viac informácií kontaktujte: 0911 175 510

Vlastnosti

Status:
aktívne
Vlastníctvo:
osobné
Úžitková plocha:
122.83 m2
Zastavaná plocha:
143.04 m2
Stav:
novostavba
Počet izieb:
4
Terasa:
áno
Garáž:
áno
Špajza:
áno
Celková plocha:
143.04 m2
Terasa plocha:
23.24 m2
Počet terás:
1
Počet garáží:
1
Plocha garáže:
20 m2

Informatívna úverová kalkulačka

Pozrieť na mape

Maklér

Alena Večerková

Alena Večerková

call centrum / klientská podpora

  • narks

 

 „Váš prvý kontakt s profesionálnym svetom realít začína tu.“

   Som prvým hlasom, ktorý v REG4U počujete, a mojím poslaním je zabezpečiť, aby sa vaša požiadavka dostala do správnych rúk. Starám sa o to, aby naša komunikácia s klientmi bola plynulá, rýchla a efektívna. Či už potrebujete informácie o konkrétnej nehnuteľnosti, alebo máte otázky k našim službám výstavby, som tu, aby som vám poskytla potrebnú podporu a nasmerovala vás k našim špecialistom.“

Moja špecializácia:

  • koordinácia klientskych dopytov a prvotná konzultácia
  • zákaznícka podpora a servis
  • správa termínov a informovanosť o portfóliu služieb

Radi Vám poradíme

Podobné nehnuteľnosti