Používame cookies

Súbory cookie a ďalšie technológie sledovania používame na zlepšenie vášho zážitku z prehliadania našich webových stránok, na to, aby sme vám zobrazovali prispôsobený obsah a cielené reklamy, na analýzu návštevnosti našich webových stránok a na pochopenie toho, odkiaľ naši návštevníci prichádzajú. Viac info

 

BUNGALOV S TERASOU 4 IZBOVÝ - Svetlý a vzdušný interiér

Interné ID: 12823869
Obec: Nové Mesto nad Váhom
Okres: Nové Mesto nad Váhom
Kraj: Trenčiansky kraj
Druh: Domy
Typ: Predaj
Typ domu: Rodinný dom
Iné:
198 500 €
cena na kľúč v prevedení štandard aj s terasou

Popis nehnuteľnosti

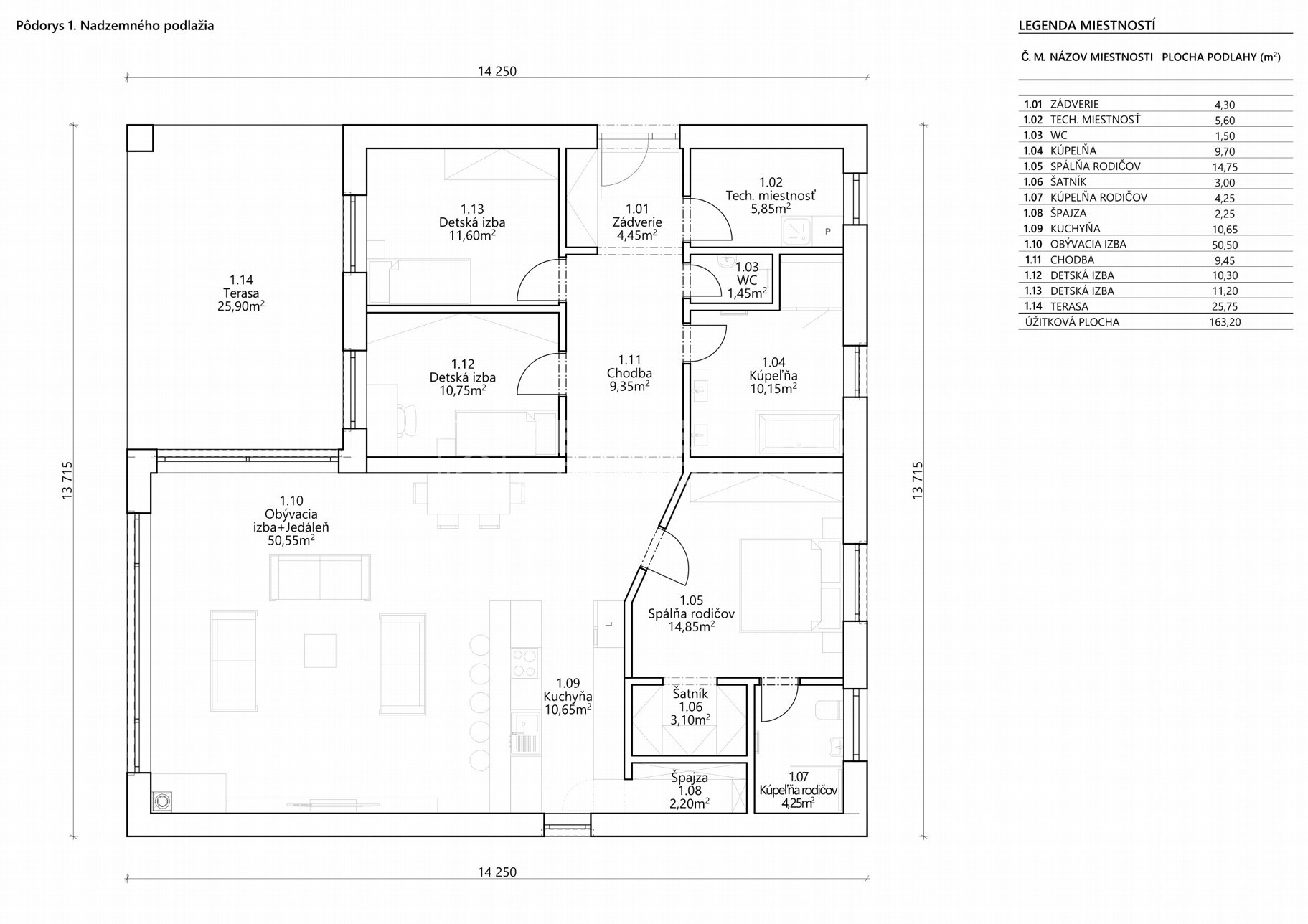
Realitná kancelária REG4U Vám ponúka na pozemku v okolí Nového Mesta nad Váhom VÝSTAVBU RODINNÉHO DOMU - 4 izbový bungalov typ KKB 14, ktorý spĺňa najvyššie nároky na moderné bývanie. Dom je navrhnutý s dôrazom na svetelnosť, priestor a funkčné prepojenie s exteriérom.

BUNGALOV KKB 14 parametre:

  • úžitková plocha:  163,20 m2
  • zastavaná plocha s terasou: 195,36 m2
  • rozmery domu:  14,25 x 13,7 m 
  • obytné miestnosti:  4

Ponuku nájdete na stránke: realestategroup4u.sk, ID: 12823869

Výhody projektu:

  • katalógový projekt
  • energetický certifikát v triede A0, mesačné náklady na vykurovanie do 160,-€/mesiac 
  • možnosť vyhotovenia domu: nízkoenergetický, pasívny, nulový
  • realizácia voliteľných súčastí stavby – napr. alarm, kamerový systém, rekuperácia, krbový systém
  • certifikát kvality stavby
  • záručný a pozáručný servis

Zhotovenie stavby:

  • tehla, Ytong, betónový monolit

Predpokladaný termín dokončenia hrubej stavby v závislosti od zvolených materiálov už do 1 mesiaca.

V projekte je možnosť bezplatných, malých úprav v dispozičnom riešení interiéru stavby v rámci projektových možností.


Ceny RD v 3 variantoch možnej výstavby:

HRUBÁ STAVBA: 105 400,-€
HOLODOM PLUS: 180 100,-€
NA KĽÚČ v prevedení ŠTANDARD vrátane terasy: 198 500,-€

CENA DOMU NEZAHŔŇA PRÍPOJKY INŽINIERSKÝCH SIETÍ A POZEMOK. VIAC INFO O POZEMKU V RK.

V REG4U vybavíme za Vás

  • hypotéku a právne služby
  • kataster
  • inžinierske siete
  • koordináciu projektu a výstavby 
  • stavebné povolenie
  • kolaudáciu
  • služby interiérového dizajnéra

Ponuku nájdete na našej web stránke v kategórii Domy na kľúč: https://www.realestategroup4u.sk/domy-na-kluc 

Pre viac informácií kontaktujte: 0911 175 510

Vlastnosti

Status:
aktívne
Vlastníctvo:
osobné
Úžitková plocha:
163.2 m2
Zastavaná plocha:
195.36 m2
Stav:
novostavba
Energetický certifikát:
A
Energetická náročnosť budovy:
Nízkoenergetický
Terasa:
áno
Špajza:
áno
Celková plocha:
195.36 m2
Terasa plocha:
25.9 m2
Počet terás:
1
Vykurovanie - podlahové:
áno

Informatívna úverová kalkulačka

Pozrieť na mape

Maklér

Alena Večerková

Alena Večerková

call centrum / klientská podpora

  • narks

 

 „Váš prvý kontakt s profesionálnym svetom realít začína tu.“

   Som prvým hlasom, ktorý v REG4U počujete, a mojím poslaním je zabezpečiť, aby sa vaša požiadavka dostala do správnych rúk. Starám sa o to, aby naša komunikácia s klientmi bola plynulá, rýchla a efektívna. Či už potrebujete informácie o konkrétnej nehnuteľnosti, alebo máte otázky k našim službám výstavby, som tu, aby som vám poskytla potrebnú podporu a nasmerovala vás k našim špecialistom.“

Moja špecializácia:

  • koordinácia klientskych dopytov a prvotná konzultácia
  • zákaznícka podpora a servis
  • správa termínov a informovanosť o portfóliu služieb

Radi Vám poradíme

Podobné nehnuteľnosti