Používame cookies

Súbory cookie a ďalšie technológie sledovania používame na zlepšenie vášho zážitku z prehliadania našich webových stránok, na to, aby sme vám zobrazovali prispôsobený obsah a cielené reklamy, na analýzu návštevnosti našich webových stránok a na pochopenie toho, odkiaľ naši návštevníci prichádzajú. Viac info

 

MODERNÝ PRÍZEMNÝ BUNGALOV s veľkou terasou

Interné ID: 12823773
Obec: Trenčianske Teplice
Okres: Trenčín
Kraj: Trenčiansky kraj
Druh: Domy
Typ: Predaj
Typ domu: Rodinný dom
Iné:
Cena v RK

Popis nehnuteľnosti

Realitná kancelária REG4U Vám ponúka na pozemku v okolí Trenčína VÝSTAVBU RODINNÉHO DOMU - 4 izbového bungalovu typ DHTU. Jednoduchá architektúra, kvalitné materiály a príjemná svetelnosť robia z domu komfortný, praktický a nadčasový domov. Dom je navrhnutý pre tých, ktorí hľadajú pokoj, súkromie a kvalitné bývanie.

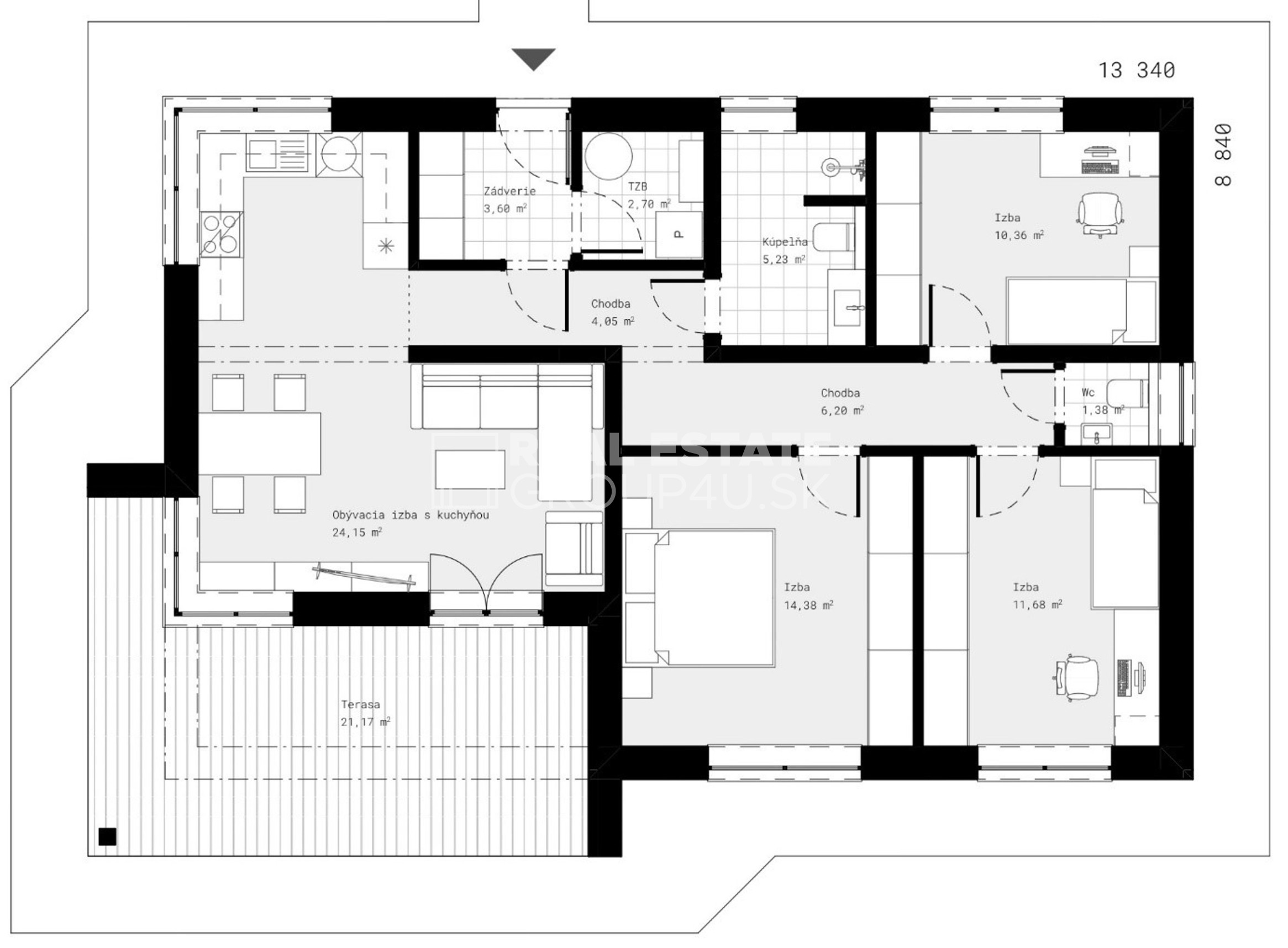
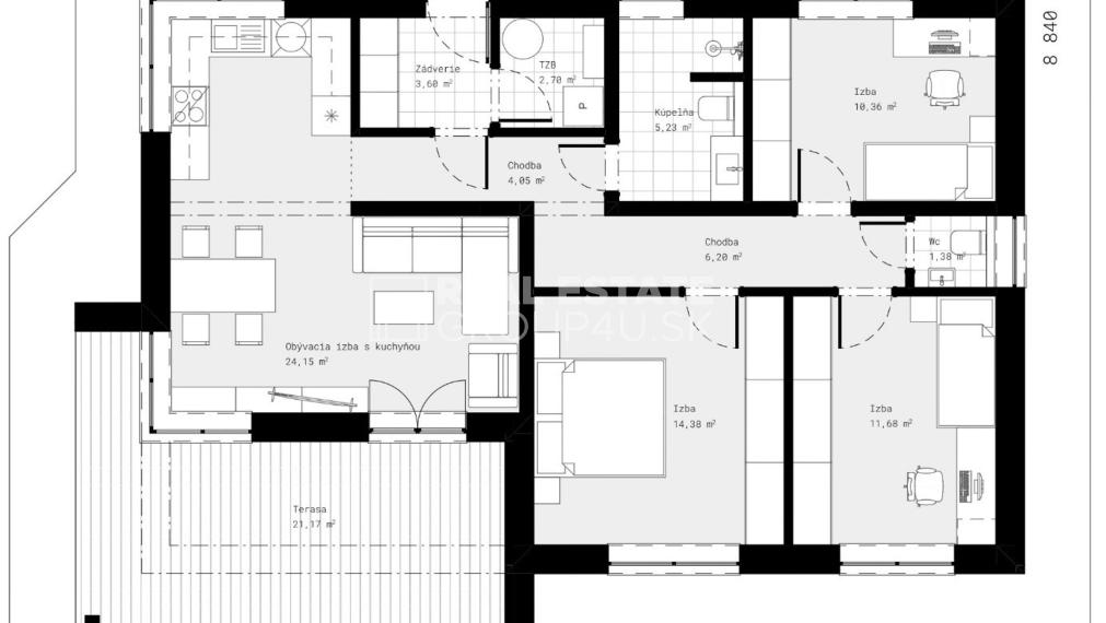
BUNGALOV DHTU parametre:

  • úžitková plocha: 83,73 m2
  • zastavaná plocha s terasou: 118 m2
  • rozmery domu: 13,34 m x 8,84 m 
  • plocha terasy: 21,17 m2
  • obytné miestnosti: 4

Ponuku nájdete na stránke: realestategroup4u.sk, ID: 12823773

Výhody projektu na mieru:

  • individuálny projekt podľa vašich potrieb a štýlu
  • maximálne využitie pozemku
  • flexibilita v dispozičnom riešení
  • efektívnejšie energetické riešenia
  • energetický certifikát v triede A0
  • možnosť vyhotovenia domu: nízkoenergetický, pasívny, nulový
  • realizácia voliteľných súčastí stavby – napr. alarm, kamerový systém, rekuperácia, krbový systém
  • certifikát kvality stavby
  • záručný a pozáručný servis

Zhotovenie stavby:

  • tehla, Ytong, betónový monolit

Predpokladaný termín dokončenia hrubej stavby v závislosti od zvolených materiálov už do 1 mesiaca.

V projekte je možnosť bezplatných, malých úprav v dispozičnom riešení interiéru stavby v rámci projektových možností.


RD je možné zrealizovať v 3 variantoch možnej výstavby:

  • hrubá stavba
  • holodom
  • na kľúč

VIAC  INFO  O  POZEMKU  A  CENE  PROJEKTU  NA  MIERU  V  RK.

V REG4U vybavíme za Vás:

  • hypotéku a právne služby
  • kataster
  • inžinierske siete
  • koordináciu projektu a výstavby 
  • stavebné povolenie
  • kolaudáciu
  • služby interiérového dizajnéra

Pre viac informácií kontaktujte: 0911 175 510

Vlastnosti

Status:
aktívne
Vlastníctvo:
osobné
Úžitková plocha:
83.73 m2
Zastavaná plocha:
128.94 m2
Stav:
novostavba
Počet izieb:
4
Energetický certifikát:
A
Energetická náročnosť budovy:
Nízkoenergetický
Terasa:
áno
Celková plocha:
128.94 m2
Terasa plocha:
21.17 m2
Počet terás:
1
Vykurovanie - podlahové:
áno

Pozrieť na mape

Maklér

Alena Večerková

Alena Večerková

call centrum / klientská podpora

  • narks

 

 „Váš prvý kontakt s profesionálnym svetom realít začína tu.“

   Som prvým hlasom, ktorý v REG4U počujete, a mojím poslaním je zabezpečiť, aby sa vaša požiadavka dostala do správnych rúk. Starám sa o to, aby naša komunikácia s klientmi bola plynulá, rýchla a efektívna. Či už potrebujete informácie o konkrétnej nehnuteľnosti, alebo máte otázky k našim službám výstavby, som tu, aby som vám poskytla potrebnú podporu a nasmerovala vás k našim špecialistom.“

Moja špecializácia:

  • koordinácia klientskych dopytov a prvotná konzultácia
  • zákaznícka podpora a servis
  • správa termínov a informovanosť o portfóliu služieb

Radi Vám poradíme

Podobné nehnuteľnosti