Používame cookies

Súbory cookie a ďalšie technológie sledovania používame na zlepšenie vášho zážitku z prehliadania našich webových stránok, na to, aby sme vám zobrazovali prispôsobený obsah a cielené reklamy, na analýzu návštevnosti našich webových stránok a na pochopenie toho, odkiaľ naši návštevníci prichádzajú. Viac info

 

PROJEKT KKB 13

Interné ID: 12823841
Druh: Domy
Typ: Predaj
Typ domu: Rodinný dom
Iné:
167 800 €
cena na kľúč v prevedení štandard aj s terasou

Popis nehnuteľnosti

Realitná kancelária REG4U Vám ponúka projekt:

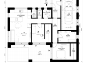
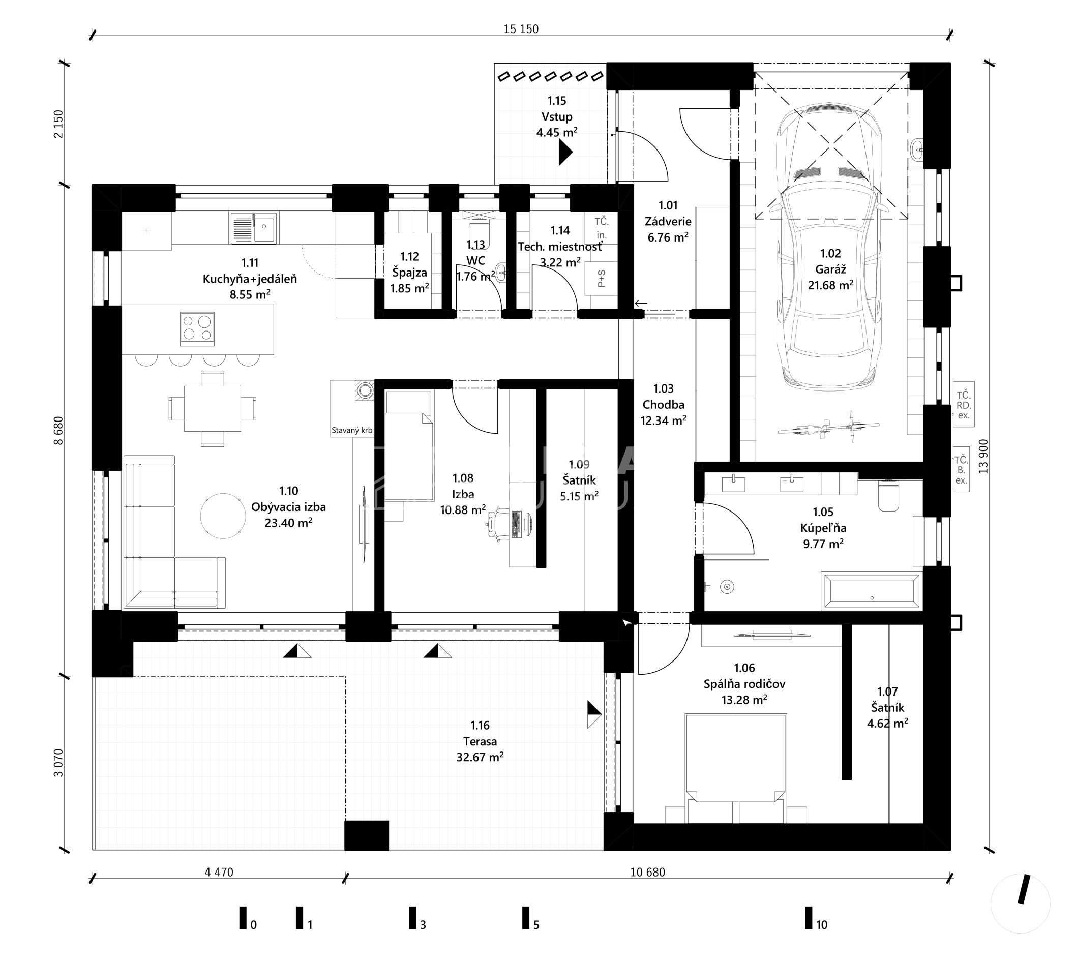
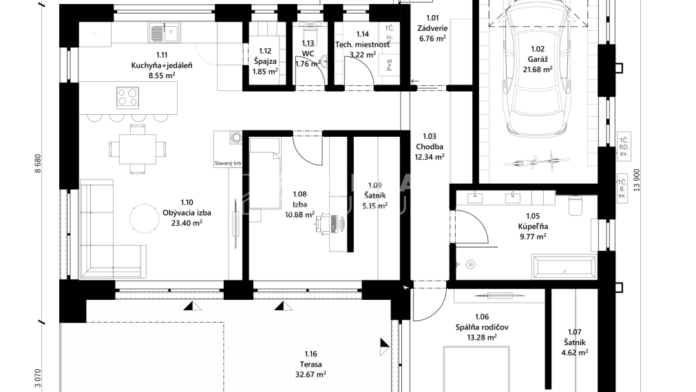
BUNGALOV KKB 13 parametre:

  • úžitková plocha:  101,58 m2
  • zastavaná plocha bez terasy: 142 m2
  • rozmery domu: 15,15 x 13,90 m 
  • obytné miestnosti:  3
  • terasa: 32,67 m2

Výhody projektu:

  • katalógový projekt
  • energetický certifikát v triede A0, mesačné náklady na vykurovanie do 100,-€/mesiac 
  • možnosť vyhotovenia domu: nízkoenergetický, pasívny, nulový
  • realizácia voliteľných súčastí stavby – napr. alarm, kamerový systém, rekuperácia, krbový systém
  • certifikát kvality stavby
  • záručný a pozáručný servis

Zhotovenie stavby:

tehla, Ytong, betónový monolit

Predpokladaný termín dokončenia hrubej stavby v závislosti od zvolených materiálov už do 1 mesiaca.

V projekte je možnosť bezplatných, malých úprav v dispozičnom riešení interiéru stavby v rámci projektových možností.


Ceny RD v 3 variantoch možnej výstavby:

HRUBÁ STAVBA: 89 800,-€
HOLODOM PLUS: 150 800,-€
NA KĽÚČ v prevedení ŠTANDARD vrátane terasy: 167 800,-€

CENA DOMU NEZAHŔŇA PRÍPOJKY INŽINIERSKÝCH SIETÍ A POZEMOK.

V REG4U vybavíme za Vás

  • hypotéku a právne služby
  • kataster
  • inžinierske siete
  • koordináciu projektu a výstavby 
  • stavebné povolenie
  • kolaudáciu
  • služby interiérového dizajnéra

Pre viac informácií kontaktujte: 0911 175 510

Vlastnosti

Status:
aktívne
Vlastníctvo:
osobné
Úžitková plocha:
101.58 m2
Zastavaná plocha:
142 m2
Stav:
novostavba
Počet izieb:
3
Energetický certifikát:
A
Energetická náročnosť budovy:
Nízkoenergetický
Terasa:
áno
Garáž:
áno
Špajza:
áno
Počet terás:
1
Počet garáží:
1
Vykurovanie - podlahové:
áno

Informatívna úverová kalkulačka

Pozrieť na mape

Maklér

 

 „Mojím cieľom je sprevádzať vás cestou k novému domovu tak, aby ste namiesto starostí s jeho kúpou, či výstavbou zažívali radosť z výsledku - kvalita a odborný dohľad sú u mňa na prvom mieste.“

   V obchode pôsobím už od roku 2002. Ako manažérka a majiteľka firmy som svoju kariéru vybudovala na dvoch pilieroch: práci s ľuďmi a precíznosti v detailoch. V roku 2017 som sa rozhodla tieto skúsenosti naplno vložiť do vlastnej realitnej a stavebno-konzultačnej spoločnosti Real Estate Group4U.

Dnes už pre našich klientov nie sme len sprostredkovateľmi predaja. Pod mojím vedením sa REG4U vyprofilovalo na partnera, ktorý dokáže zastrešiť kompletný životný cyklus nehnuteľnosti. Teší ma, že si do svojho tímu vyberám špičkových odborníkov, ktorým plne dôverujem. Spoločne s našimi partnermi dokážeme premeniť prázdny pozemok na skolaudovaný rodinný dom.

V čom spočíva moja pridaná hodnota pre vás? Dohliadam na to, aby sme vám prinášali riešenia, ktoré dávajú zmysel ekonomicky aj technicky. Či už ide o hľadanie ideálneho pozemku, zabezpečenie financovania, právny servis alebo komplexnú koordináciu výstavby vášho domu, stojím za kvalitou našich služieb.

Kvalita, komplexnosť a transparentnosť – to sú hodnoty, ktorými sa riadim pri každom projekte. 

Radi Vám poradíme

Podobné nehnuteľnosti